1. Home
  2. Search Listings
  3. 1733 Winter Green Boulevard Winter Park, FL - 32792
  • MLS® #: RX-11149335
  • 1733 Winter Green Boulevard
  • Winter Park, FL 32792
  • $334,000
  • 3 Beds, 2 Bath, 1,548 SqFt
  • Residential

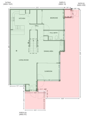
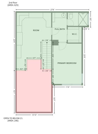
The perfect hideaway home, nestled in the oaks, in coveted and charming Winter Park. Get the ''small-town'' feel, close to all the dynamic, high-energy Orlando has to offer. Your key gateway and home base to picturesque Central Florida. This versatile 2-story end-unit townhouse in a park-like setting lives like a single-family home. Privacy galore. It will appeal not just to 'Orlandoans' but also to snowbirds seeking Florida residency, investors, and South Floridians seeking a weekend retreat. Yes, the high-speed Brightline rail runs between Orlando and Miami. The 3rd bedroom features a loft/home-office design with custom cabinetry and a Murphy bed. Low-maintenance and pet-friendly lifestyle. You're home! Park, and enter your front door. Come and go at leisure without seeing a doorman.No worries about having to deal with a parking garage or navigating long hallways. Fenced patio area and close to the pool. Living your best life, in the Sunshine State! Downstairs bedroom and bath, and an extra flexible room. This has been a one-owner property since construction, with light use, and it has always been well-maintained. Location, location, location! Of note, Herzing University is very walkable, just 50 yards from the front door, and Full Sail University is 1.5 miles away. The well-appointed property with skylights affords quick access to Semeron Boulevard (100 yards away), I-4, and the Central Florida GreeneWay. In addition to the facilities within the Winter Green at Winter Park community, the "Greenway" recreational trail is nearby, with designated areas for walking, biking, and skating, as well as parks with playgrounds, picnic spots, and water features. Orlando International Airport (MCO) is close by, as is endless nearby shopping, dining, entertainment, nightlife, and cultural activities. Orlando's famed theme parks and attractions are about 30 minutes away. On-site tennis/pickleball, dog-walk park, small lake with a fountain, and benches. Desirable treelined Winter Park lifestyle. The 2025 air conditioner is under a year old, and the roof was replaced in 2020. A recent inspection report is available. Furnished photos are digitally staged. Separate from the walk-through reel, a second aerial reel shows proximity to Herzing University.

View Virtual Tour

Essential Information

  • MLS® #RX-11149335
  • Price$334,000
  • CAD Dollar$463,351
  • UK Pound£247,951
  • Euro€286,482
  • HOA Fees188.00
  • Bedrooms3
  • Bathrooms2.00
  • Full Baths2
  • Square Footage1,548
  • Year Built1987
  • TypeResidential
  • Sub-TypeTownhouse / Villa / Row
  • StyleTownhouse, Traditional
  • StatusActive Under Contract
  • HOPANo Hopa

Restrictions

Comercial Vehicles Prohibited, No Boat, No RV, Lease OK

Community Information

  • Address1733 Winter Green Boulevard
  • Area5940
  • SubdivisionWinter Green
  • DevelopmentWinter Green
  • CityWinter Park
  • CountySeminole
  • StateFL
  • Zip Code32792

Amenities

  • Parking2+ Spaces
  • ViewGarden
  • WaterfrontNone
  • Pets AllowedYes

Amenities

Pickleball, Pool, Tennis, Sidewalks

Utilities

3-Phase Electric, Public Sewer, Public Water

Interior

  • HeatingCentral, Electric
  • CoolingCeiling Fan, Central, Electric
  • # of Stories2
  • Stories2.00

Interior Features

Sky Light(s), Split Bedroom, Walk-in Closet, Ctdrl/Vault Ceilings, Cook Island

Appliances

Dishwasher, Dryer, Microwave, Range - Electric, Refrigerator, Washer, Washer/Dryer Hookup, Water Heater - Elec

Exterior

  • Exterior FeaturesFence, Open Patio
  • Lot Description< 1/4 Acre
  • WindowsBlinds
  • RoofSlate
  • ConstructionFrame, Vinyl Siding
  • Office: Compass Florida Llc

Property Location

Please provide a valid email address.

1733 Winter Green Boulevard on www.jupiteroceanfronthomes.us

Offered at the current list price of $334,000, this home for sale at 1733 Winter Green Boulevard features 3 bedrooms and 2 bathrooms. This real estate listing is located in Winter Green of Winter Park, FL 32792 and is approximately 1,548 square feet. 1733 Winter Green Boulevard is listed under the MLS ID of RX-11149335 and has been available through www.jupiteroceanfronthomes.us for the Winter Park real estate market for 21 days.

All listings featuring the BMLS logo are provided by Beaches MLS Inc. Copyright 2026 Beaches MLS. This information is not verified for authenticity or accuracy and is not guaranteed.
© 2026 Beaches Multiple Listing Service, Inc. All rights reserved.

Listing information last updated on January 13th, 2026 at 3:45am CST.