1. Home
  2. Search Listings
  3. 2860 S Seacrest Boulevard Boynton Beach, FL - 33435
NEW
  • MLS® #: RX-11145660
  • 2860 S Seacrest Boulevard
  • Boynton Beach, FL 33435
  • $1,500,000
  • 0.96 Acres
  • Business

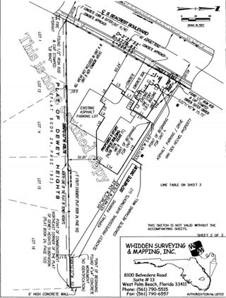
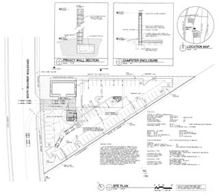
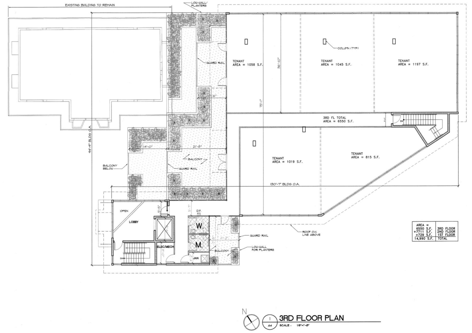
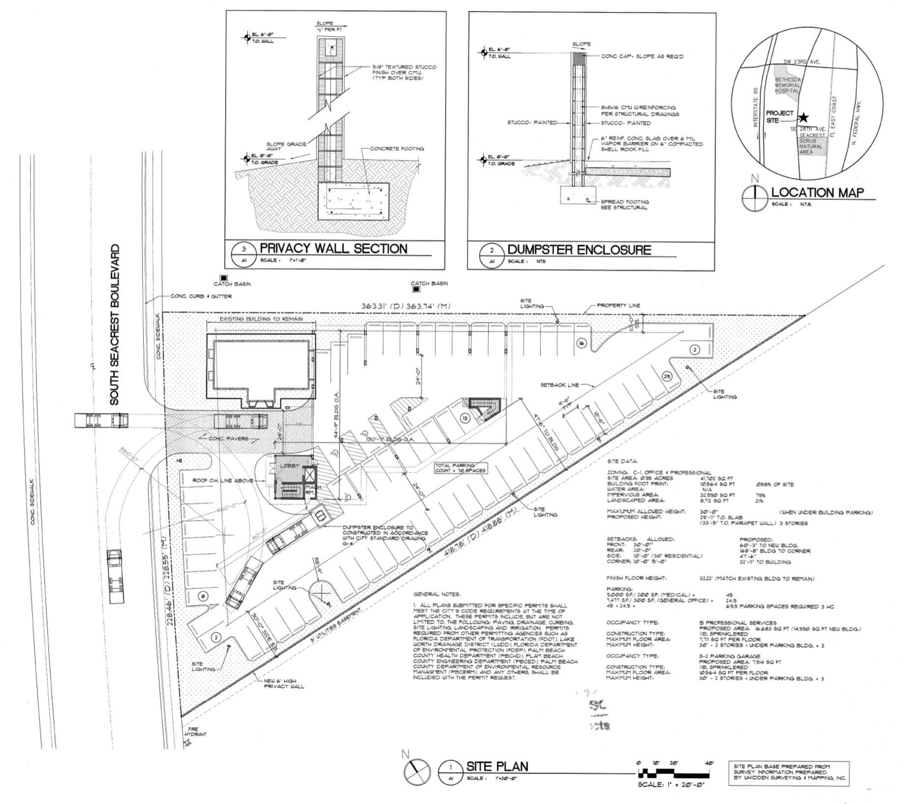
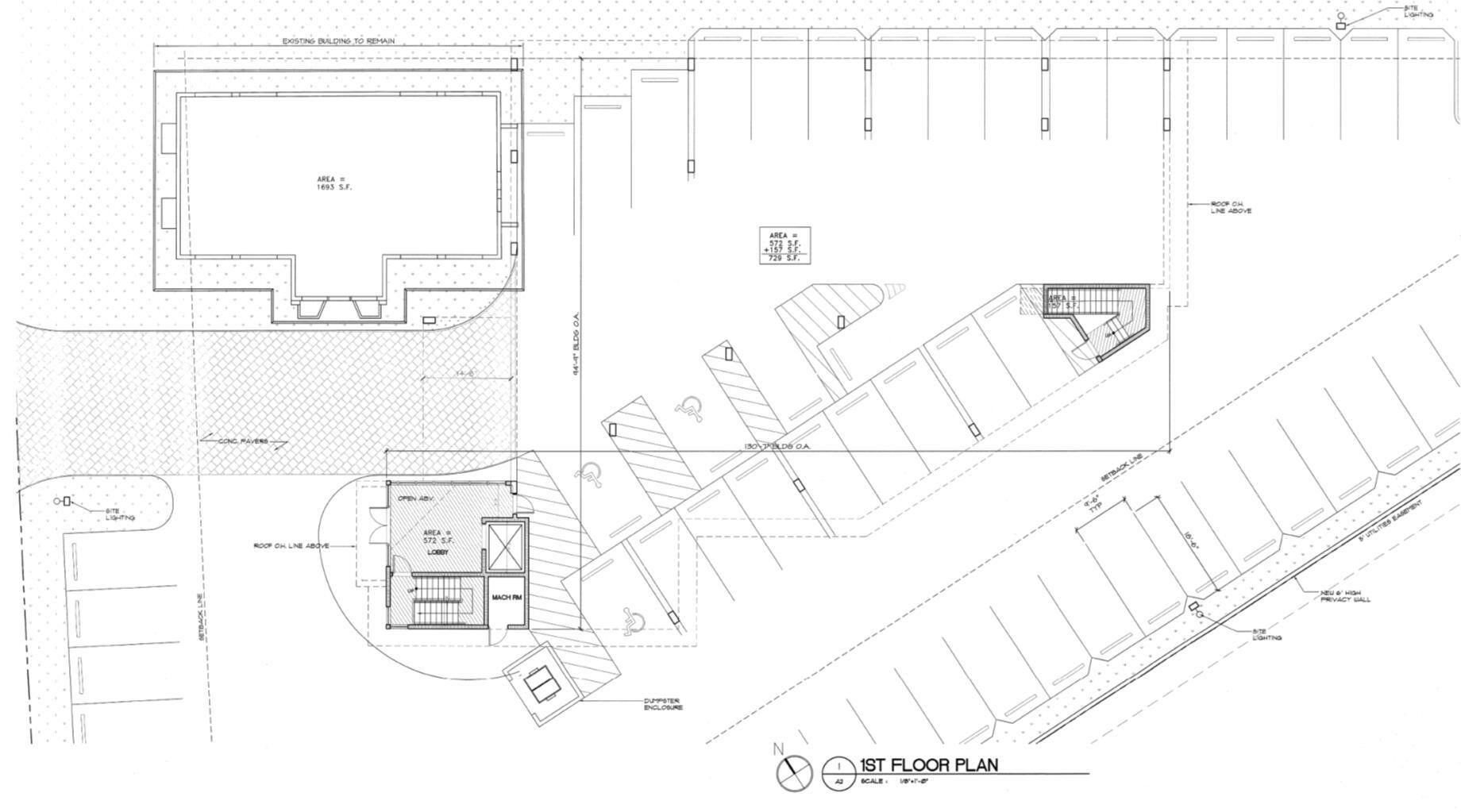
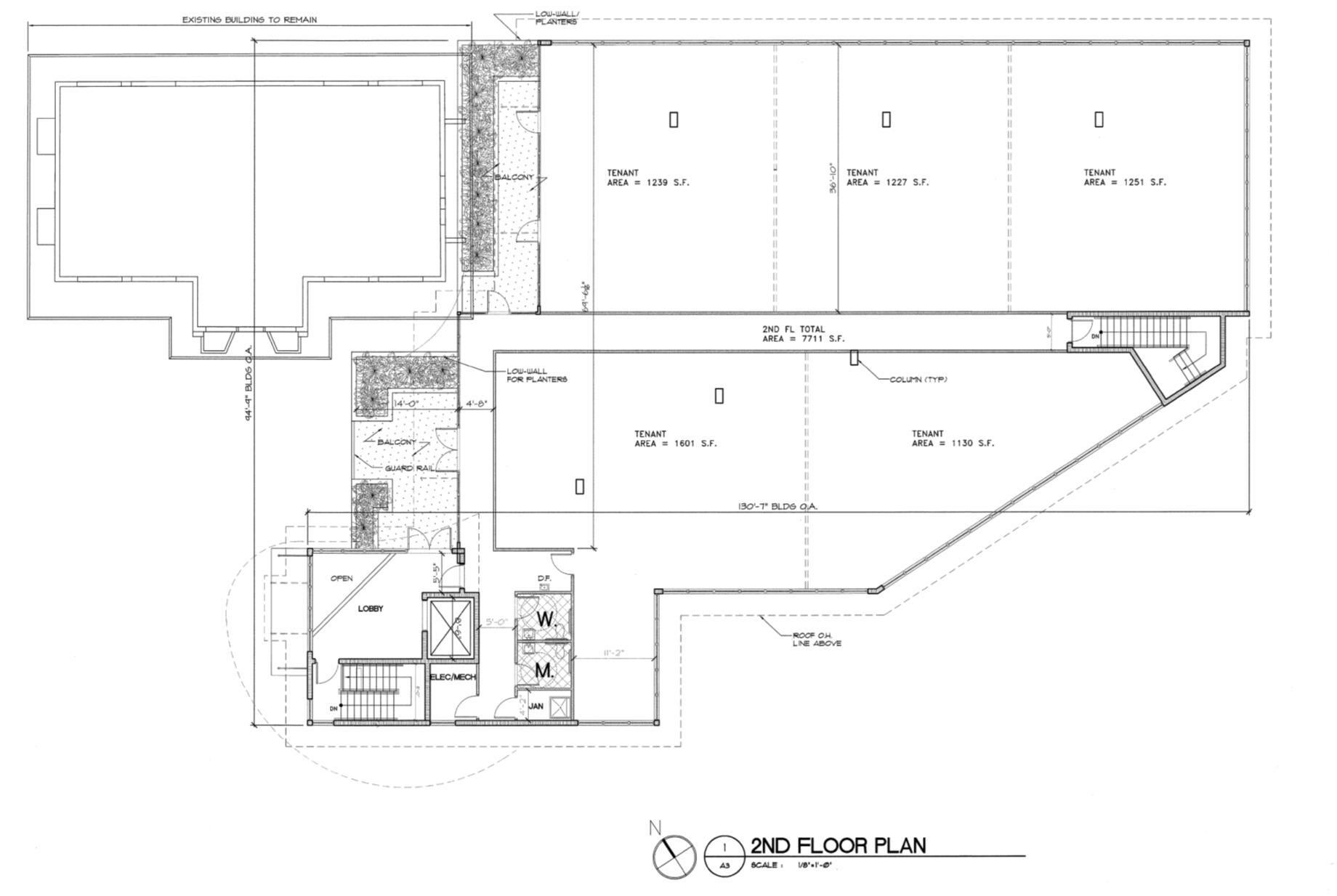
Gator Commercial Real Estate is pleased to present for sale 2860 S Seacrest Boulevard - Unit B, a vacant development site located within the Seacrest Green Professional Condominium in Boynton Beach, Florida.The property is positioned along the well-established Seacrest medical corridor, across street from Bethesda Hospital East, surrounded by a critical mass of healthcare, wellness, and professional users.Architectural renderings and conceptual plans envision a three-story, +/-15,000 square foot medical office building designed to complement the surrounding professional campus. The design proposes a first-floor lobby and parking interface, 7,711 SF on the second floor, and 6,550 SF on the third floor with balconies and architectural features enhancing visibility and tenant appeal.Condominium Unit Area: 8,800 SF (0.202 acres) Common Area Interest: 83.87 % of 0.806 acres (35,123 SF) Total Economic Site Area: Ü 0.968 acres (43,923 SF) Topography: Cleared and level

View Virtual Tour

Essential Information

  • MLS® #RX-11145660
  • Price$1,500,000
  • CAD Dollar$2,073,941
  • UK Pound£1,124,681
  • Euro€1,287,554
  • Acres0.96
  • TypeBusiness
  • Sub-TypeIncome, Professional Office
  • StyleNot Improved
  • StatusNew

Community Information

  • Address2860 S Seacrest Boulevard
  • Area4340
  • CityBoynton Beach
  • CountyPalm Beach
  • StateFL
  • Zip Code33435

Amenities

  • UtilitiesOther

Interior

  • AppliancesLand Only
  • HeatingOther
  • CoolingOther

Exterior

  • Lot DescriptionVacant land
  • RoofOther
  • Office: Gator Commercial Real Estate Llc

Property Location

Please provide a valid email address.

2860 S Seacrest Boulevard on www.jupiteroceanfronthomes.us

Offered at the current list price of $1,500,000, this home for sale at 2860 S Seacrest Boulevard features bedrooms and 0 bathrooms. This real estate listing is located in of Boynton Beach, FL 33435 . 2860 S Seacrest Boulevard is listed under the MLS ID of RX-11145660 and has been available through www.jupiteroceanfronthomes.us for the Boynton Beach real estate market for 3 days.

All listings featuring the BMLS logo are provided by Beaches MLS Inc. Copyright 2025 Beaches MLS. This information is not verified for authenticity or accuracy and is not guaranteed.
© 2025 Beaches Multiple Listing Service, Inc. All rights reserved.

Listing information last updated on December 8th, 2025 at 9:33am CST.