1. Home
  2. Search Listings
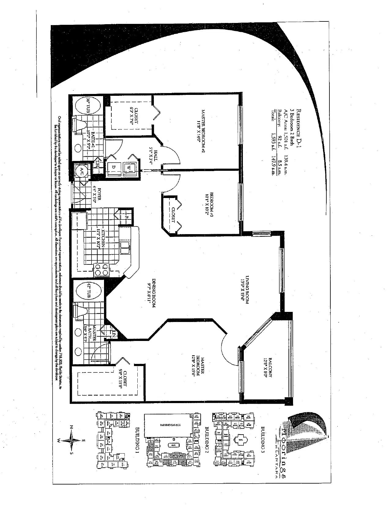
  3. 804 E Windward Way #201 Lantana, FL - 33462
  • MLS® #: RX-11137700
  • 804 E Windward Way #201
  • Lantana, FL 33462
  • $309,900
  • 3 Beds, 2 Bath, 1,515 SqFt
  • Residential

A fantastic lifestyle awaits you in this intracoastal community, with resort-like amenities that will deliver you the on vacation vibe every day. The Moorings features two pools, one overlooking the waterway and separate marina, two jacuzzi's, saunas, fitness, business and club rooms, garage and valet parking plus even a concierge service. All within a lovely, well-maintained and lushly landscaped waterfront oasis. This corner 3 bedroom unit is very spacious, with a split bedroom plan suitable for two master suites and a guest bdrm/office/den as well. The best part? A quiet location in Lantana yet minutes to beaches, shopping, restaurants and hot spots- including a mere 5 minutes from the iconic Old Key Lime House and John G's over the bridge.

View Virtual Tour

Essential Information

  • MLS® #RX-11137700
  • Price$309,900
  • CAD Dollar$420,767
  • UK Pound£231,148
  • Euro€266,764
  • HOA Fees1322
  • Bedrooms3
  • Bathrooms2.00
  • Full Baths2
  • Square Footage1,515
  • Year Built2006
  • TypeResidential
  • Sub-TypeCondo/Coop
  • Style4+ Floors
  • Unit Floor2
  • StatusActive Under Contract
  • HOPANo Hopa

Restrictions

Commercial Vehicles Prohibited, Lease OK w/Restrict, Tenant Approval

Community Information

  • Address804 E Windward Way #201
  • Area5640
  • SubdivisionMOORINGS AT LANTANA CONDO 2
  • CityLantana
  • CountyPalm Beach
  • StateFL
  • Zip Code33462

Amenities

  • UtilitiesCable, Public Water
  • ParkingAssigned, Garage - Building
  • # of Garages1
  • ViewOther
  • WaterfrontNone
  • Pets AllowedYes

Amenities

Bike - Jog, Business Center, Cafe/Restaurant, Community Room, Elevator, Fitness Center, Manager on Site, Picnic Area, Pool, Sauna, Sidewalks, Spa-Hot Tub

Interior

  • Interior FeaturesBar, Foyer, Walk-in Closet
  • HeatingCentral
  • CoolingCentral
  • # of Stories7
  • Stories7.00

Appliances

Dishwasher, Disposal, Dryer, Ice Maker, Microwave, Range - Electric, Refrigerator, Smoke Detector, Washer

Exterior

  • ConstructionCBS

Exterior Features

Covered Balcony, Screened Balcony

School Information

  • ElementaryLantana Elementary School
  • MiddleLantana Middle School
  • HighLake Worth High School
  • Office: The Keyes Company

Property Location

Please provide a valid email address.

804 E Windward Way #201 on www.jupiteroceanfronthomes.us

Offered at the current list price of $309,900, this home for sale at 804 E Windward Way #201 features 3 bedrooms and 2 bathrooms. This real estate listing is located in MOORINGS AT LANTANA CONDO 2 of Lantana, FL 33462 and is approximately 1,515 square feet. 804 E Windward Way #201 is listed under the MLS ID of RX-11137700 and has been available through www.jupiteroceanfronthomes.us for the Lantana real estate market for 124 days.

Similar Listings to 804 E Windward Way #201

Photo of Listing #RX-11134570
  • MLS® #: RX-11134570
  • 301 Croton Avenue #406
  • Lantana, FL 33462
  • $295,000
  • 1 Bed, 1 Bath, 702 SqFt
  • Residential
Add as Favorite
Photo of Listing #RX-11126138
  • MLS® #: RX-11126138
  • 301 Croton Avenue #305
  • Lantana, FL 33462
  • $287,500
  • 1 Bed, 1 Bath, 702 SqFt
  • Residential
Add as Favorite
Photo of Listing #RX-11167949
  • MLS® #: RX-11167949
  • 804 E Windward Way #119
  • Lantana, FL 33462
  • $315,000
  • 2 Bed, 3 Bath, 1,265 SqFt
  • Residential
Add as Favorite
Photo of Listing #RX-11106895
  • MLS® #: RX-11106895
  • 896 N Federal Hwy 526 Highway #526
  • Lantana, FL 33462
  • $275,000
  • 2 Bed, 2 Bath, 1,029 SqFt
  • Residential
Add as Favorite

All listings featuring the BMLS logo are provided by Beaches MLS Inc. Copyright 2026 Beaches MLS. This information is not verified for authenticity or accuracy and is not guaranteed.
© 2026 Beaches Multiple Listing Service, Inc. All rights reserved.

Listing information last updated on March 8th, 2026 at 3:13am CDT.