1. Home
  2. Search Listings
  3. 514 Ne 3rd Avenue Delray Beach, FL - 33444
  • MLS® #: RX-11133861
  • 514 Ne 3rd Avenue
  • Delray Beach, FL 33444
  • $2,200,000
  • Land

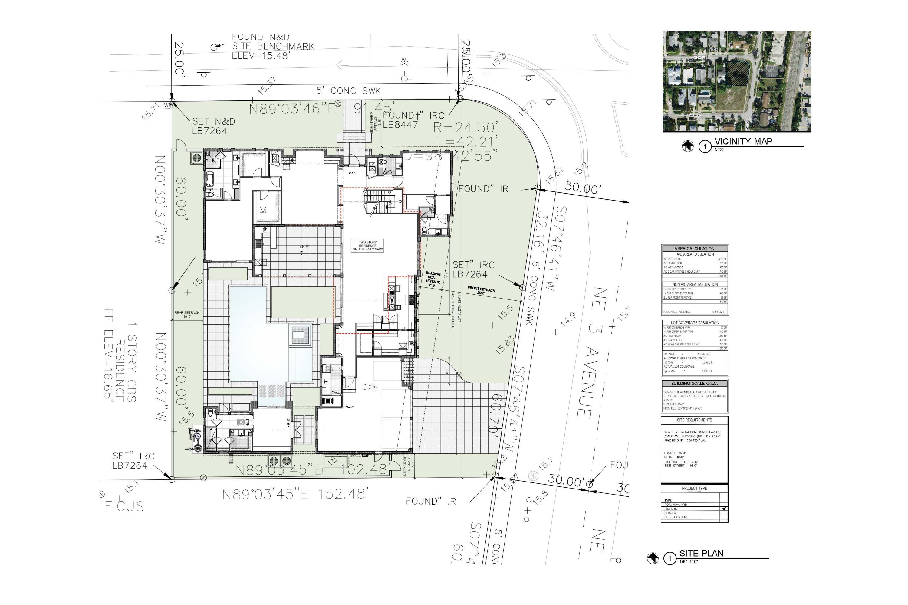
A rare downtown Delray Beach opportunity: a fully designed, permit-ready corner custom estate site by award-winning Randall Stofft Architects, just four blocks from Atlantic Avenue and less than a mile to the sand. Set on a 13,165 +/- SF lot within the Del Ida Park overlay, this offering includes plans for a two-story coastal-transitional estate totaling 6,217 SF (4,941 SF under air) with six bedrooms, six-and-a-half baths, a wellness suite, club/flex room, office/gym, and resort-style courtyard pool.Surrounded by new multimillion-dollar residences--including two luxury homes planned on the adjacent parcels--the property anchors a block that's rapidly becoming one of East Delray's most desirable addresses. Enjoy the ability to walk or golf-cart to cafes, boutiques, and Atlantic Avenuenightlife while living in a quiet residential pocket minutes from the beach. For those ready to build a signature residence in the heart of Downtown Delray Beach, plans deliver a rare blend of architectural pedigree and ready-to-start convenience. Whether you're a builder seeking your next high-end project or a homeowner wanting a custom design without the delay of new planning, this offering is a turn-key path to a luxury coastal lifestyle. The information published and provided, including but not limited to prices, measurements, square footages, lot sizes, features, finishes, and calculations, is subject to errors, omissions, or changes without notice. All such information should be independently verified. All parties should perform their own due diligence to verify all information.

View Virtual Tour

Essential Information

  • MLS® #RX-11133861
  • Price$2,200,000
  • CAD Dollar$3,102,942
  • UK Pound£1,684,109
  • Euro€1,911,826
  • HOA Fees0.00
  • Acres0.00
  • TypeLand
  • Sub-TypeSingle Family Detached
  • StyleNo
  • StatusActive

Community Information

  • Address514 Ne 3rd Avenue
  • Area4240
  • SubdivisionDEL IDA PARK IN
  • CityDelray Beach
  • CountyPalm Beach
  • StateFL
  • Zip Code33444

Exterior

  • Lot Description1/4 to 1/2 Acre
  • Office: Posh Properties

Property Location

Please provide a valid email address.

514 Ne 3rd Avenue on www.jupiteroceanfronthomes.us

Offered at the current list price of $2,200,000, this home for sale at 514 Ne 3rd Avenue features bedrooms and 0 bathrooms. This real estate listing is located in DEL IDA PARK IN of Delray Beach, FL 33444 . 514 Ne 3rd Avenue is listed under the MLS ID of RX-11133861 and has been available through www.jupiteroceanfronthomes.us for the Delray Beach real estate market for 17 days.

Similar Listings to 514 Ne 3rd Avenue

Photo of Listing #RX-11101912
  • MLS® #: RX-11101912
  • 248 Se 1st Avenue
  • Delray Beach, FL 33444
  • $2,400,000
  • Land
Add as Favorite
Photo of Listing #RX-11092607
  • MLS® #: RX-11092607
  • 632 Allen Avenue N
  • Delray Beach, FL 33483
  • $2,300,000
  • Land
Add as Favorite
Photo of Listing #RX-11065594
  • MLS® #: RX-11065594
  • 198 Se 4th Street
  • Delray Beach, FL 33483
  • $2,100,000
  • 0.59 Acres
  • Land
Add as Favorite

All listings featuring the BMLS logo are provided by Beaches MLS Inc. Copyright 2025 Beaches MLS. This information is not verified for authenticity or accuracy and is not guaranteed.
© 2025 Beaches Multiple Listing Service, Inc. All rights reserved.

Listing information last updated on November 6th, 2025 at 6:07pm CST.