1. Home
  2. Search Listings
  3. 2400 N Federal Hwy Delray Beach, FL - 33483
  • MLS® #: RX-11042955
  • 2400 N Federal Hwy
  • Delray Beach, FL 33483
  • $7,200,000
  • 14,875 SqFt, 1.37 Acres
  • Business

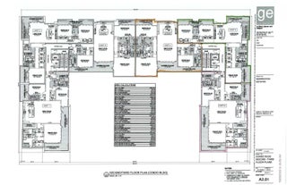
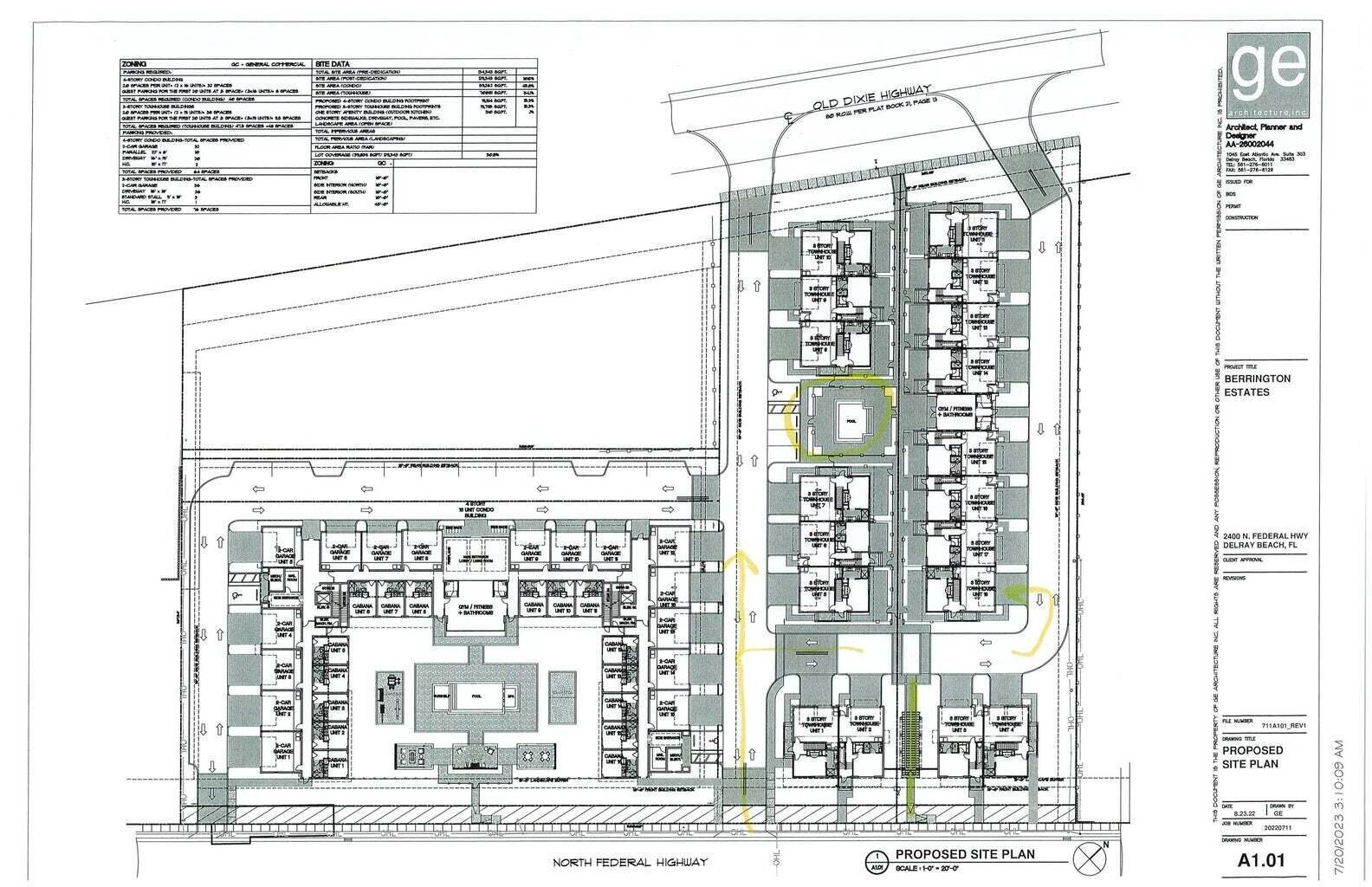
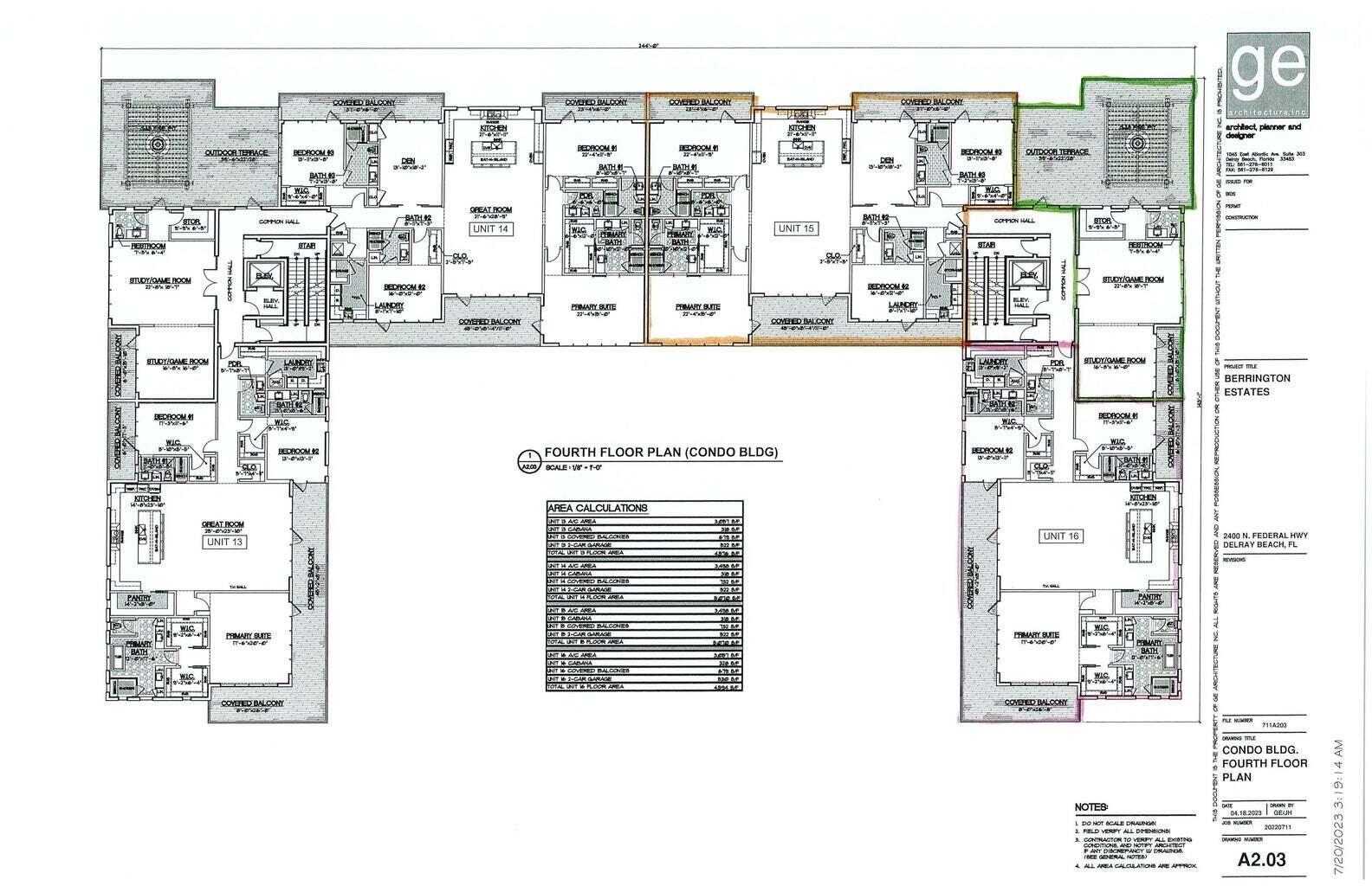
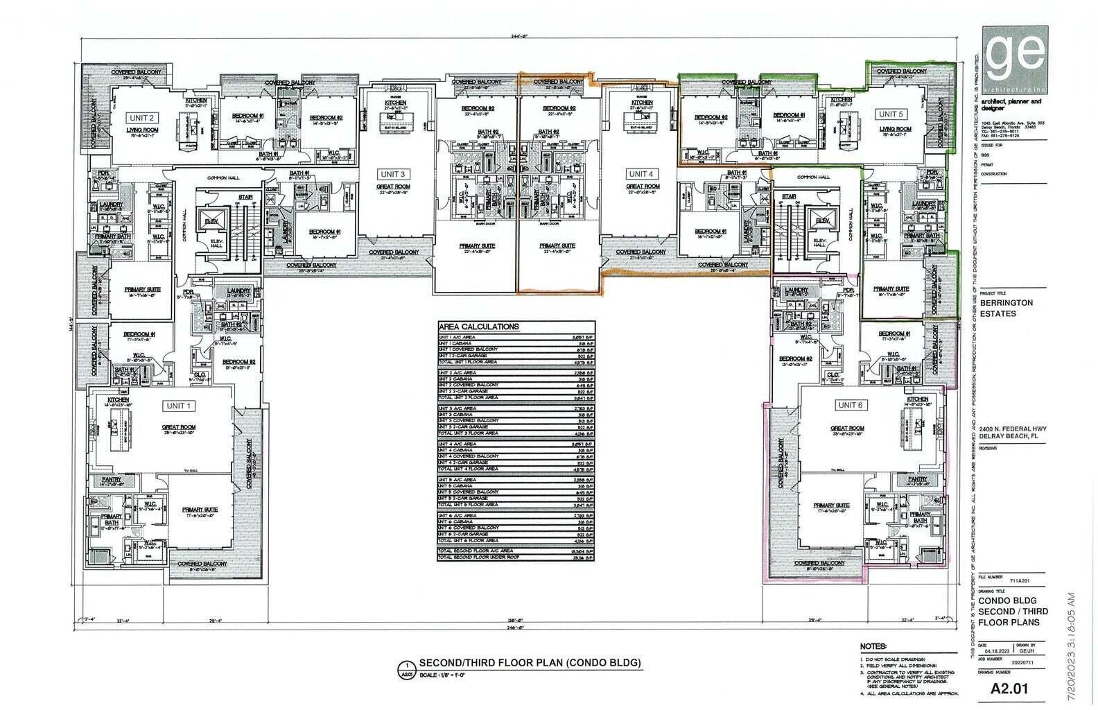
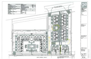
Discover a Prime Investment and Redevelopment Opportunity in Delray Beach Located just off Federal Highway in the vibrant city of Delray Beach, this approved project offers an extraordinary opportunity to create a luxury community of 16 sophisticated condos. These thoughtfully designed residences feature spacious 2-3 bedroom layouts, each exceeding 2,500 sq. ft. of elegant living space. A selection of condos includes private garages with direct access to the units, offering added convenience for future homeowners. The site plans also feature exceptional resort-style amenities, such as a pool, clubhouse, cabanas, and an outdoor kitchen, enhancing the appeal of this exclusive community. This project is perfect for someone ready to seize the opportunity to make their mark in Delray Beach!

View Virtual Tour

Essential Information

  • MLS® #RX-11042955
  • Price$7,200,000
  • CAD Dollar$10,160,194
  • UK Pound£5,529,938
  • Euro€6,266,988
  • Square Footage14,875
  • Acres1.37
  • Year Built2025
  • TypeBusiness
  • Sub-TypeIndustrial, Mixed, Other
  • StyleCommercial, Income, Retail
  • StatusActive

Community Information

  • Address2400 N Federal Hwy
  • Area4360
  • SubdivisionDELRAY BEACH ESTS
  • CityDelray Beach
  • CountyPalm Beach
  • StateFL
  • Zip Code33483

Amenities

  • UtilitiesPublic Sewer, Public Water

Interior

  • AppliancesBuilding and Land
  • HeatingOther
  • CoolingCentral
  • # of Stories4

Exterior

  • Lot DescriptionStore/Redevelopment
  • RoofOther
  • Office: Compass Florida Llc

Property Location

Please provide a valid email address.

2400 N Federal Hwy on www.jupiteroceanfronthomes.us

Offered at the current list price of $7,200,000, this home for sale at 2400 N Federal Hwy features bedrooms and 0 bathrooms. This real estate listing is located in DELRAY BEACH ESTS of Delray Beach, FL 33483 and is approximately 14,875 square feet. 2400 N Federal Hwy is listed under the MLS ID of RX-11042955 and has been available through www.jupiteroceanfronthomes.us for the Delray Beach real estate market for 334 days.

Similar Listings to 2400 N Federal Hwy

Photo of Listing #RX-11042956
  • MLS® #: RX-11042956
  • 2410 N Federal Hwy
  • Delray Beach, FL 33483
  • $8,500,000
  • 8,656 SqFt, 1.71 Acres
  • Business
Add as Favorite

All listings featuring the BMLS logo are provided by Beaches MLS Inc. Copyright 2025 Beaches MLS. This information is not verified for authenticity or accuracy and is not guaranteed.
© 2025 Beaches Multiple Listing Service, Inc. All rights reserved.

Listing information last updated on November 5th, 2025 at 8:35pm CST.