1. Home
  2. Search Listings
  3. 9085 S Highway A1a Melbourne Beach, FL - 32951
REDUCED
  • MLS® #: R11162970
  • 9085 S Highway A1a
  • Melbourne Beach, FL 32951
  • $2,850,000
  • 3 Beds, 3 Bath, 3,110 SqFt
  • Residential

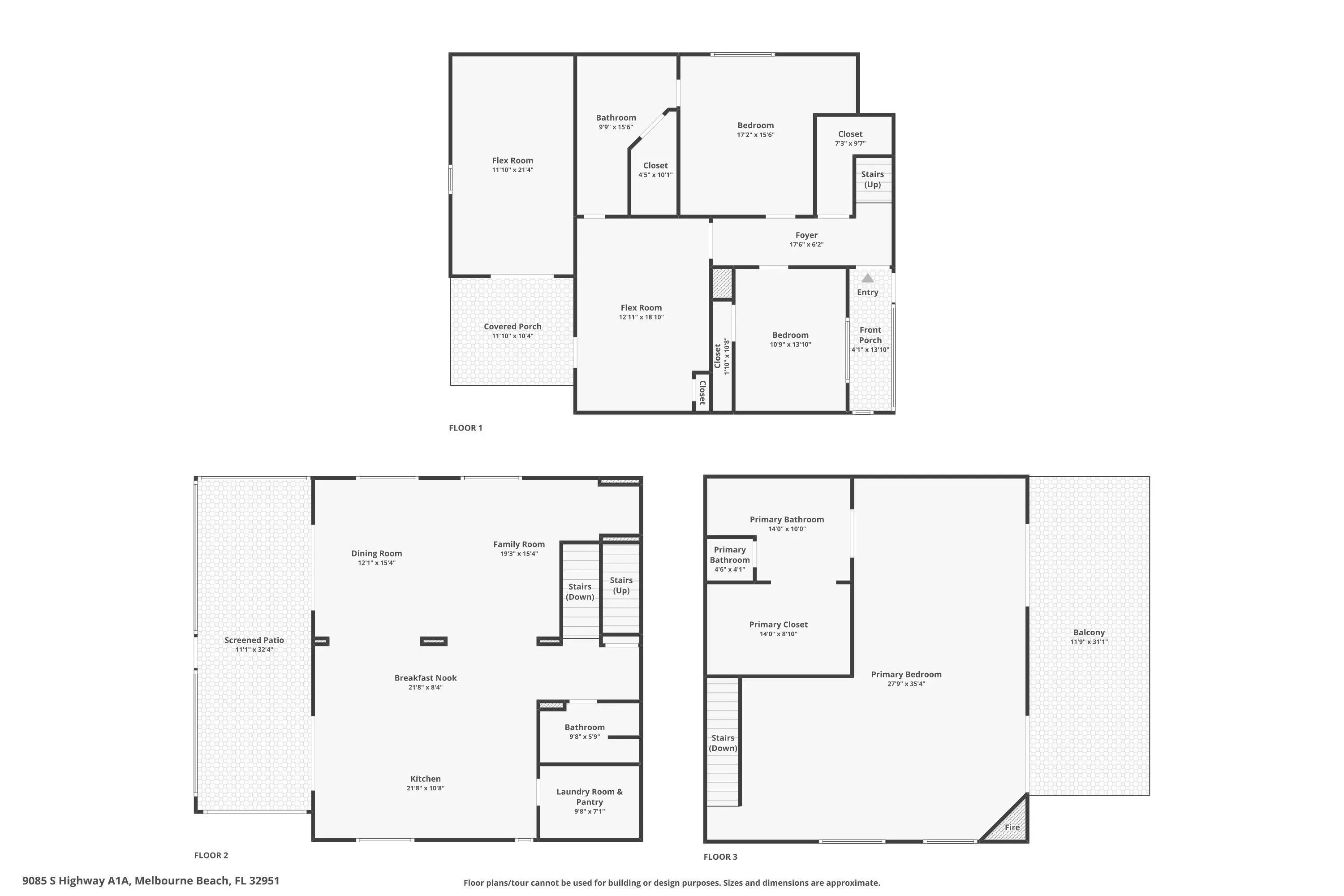
OCEANFRONT- NO HOA- Located in desirable south Melbourne Beach, this UPDATED 3-story single-family home, with balconies on the 2nd and 3rd floors, plus a bonus room and a finished extra storage room, 3 full baths, and 3,110 square feet, features an open floor plan with multiple living areas, luxury vinyl plank flooring, and an updated kitchen with an island and newer appliances. The primary suite is located on the third floor with a large bathroom, shower, and walk-in closet. An additional bedroom suite is located on the first floor, ideal for guests or flexible living. Exterior features include a large driveway and new shutters throughout. Centrally located near Vero Beach, Cocoa Beach, Viera, the Space Center, Melbourne and Orlando International Airports, Disney World, and more.

Essential Information

  • MLS® #R11162970
  • Price$2,850,000
  • CAD Dollar$3,913,478
  • UK Pound£2,136,591
  • Euro€2,462,970
  • Bedrooms3
  • Bathrooms3.00
  • Full Baths3
  • Square Footage3,110
  • Year Built1998
  • TypeResidential
  • Sub-TypeSingle Family Residence
  • RestrictionsNo Restrictions
  • StatusPrice Change
  • HOPANo Hopa

Community Information

  • Address9085 S Highway A1a
  • SubdivisionINDIAN RIVER OAKS SUBD
  • CityMelbourne Beach
  • CountyBrevard
  • StateFL
  • Zip Code32951

Area

6371 - Brevard County (E of IR)

Amenities

  • AmenitiesNone
  • ViewOcean
  • Is WaterfrontYes
  • Pets AllowedYes, No Restrictions

Utilities

Cable Available, Water Available

Waterfront

Ocean Access, Navigable Water, Ocean Front

Interior

  • HeatingCentral, Electric
  • CoolingCentral Air, Electric
  • FireplaceYes
  • # of Stories3

Interior Features

Entrance Foyer, Pantry, Walk-In Closet(s), Bedroom Layout - Split, Upstairs Living Area, Storage

Appliances

Electric Water Heater, Disposal, Dishwasher, Electric Range, Refrigerator, Water Heater

Exterior

  • Exterior FeaturesBalcony
  • ConstructionConcrete, Stucco, CBS
  • Office: Compass Florida, Llc

Property Location

Please provide a valid email address.

9085 S Highway A1a on www.jupiteroceanfronthomes.us

Offered at the current list price of $2,850,000, this home for sale at 9085 S Highway A1a features 3 bedrooms and 3 bathrooms. This real estate listing is located in INDIAN RIVER OAKS SUBD of Melbourne Beach, FL 32951 and is approximately 3,110 square feet. 9085 S Highway A1a is listed under the MLS ID of R11162970 and has been available through www.jupiteroceanfronthomes.us for the Melbourne Beach real estate market for 37 days.

Similar Listings to 9085 S Highway A1a

Photo of Listing #R11153786
  • MLS® #: R11153786
  • 7095 S Hwy A1a
  • Melbourne Beach, FL 32951
  • $2,499,000
  • 4 Bed, 3 Bath, 2,640 SqFt
  • Residential
Add as Favorite

All listings featuring the BMLS logo are provided by Beaches MLS Inc. Copyright 2026 Beaches MLS. This information is not verified for authenticity or accuracy and is not guaranteed.
© 2026 Beaches Multiple Listing Service, Inc. All rights reserved.

Listing information last updated on March 21st, 2026 at 4:31pm CDT.