1. Home
  2. Search Listings
  3. 11417 Sw 214th Miami, FL - 33189
REDUCED
  • MLS® #: F10507027
  • 11417 Sw 214th
  • Miami, FL 33189
  • $449,000
  • 0.16 Acres
  • Land

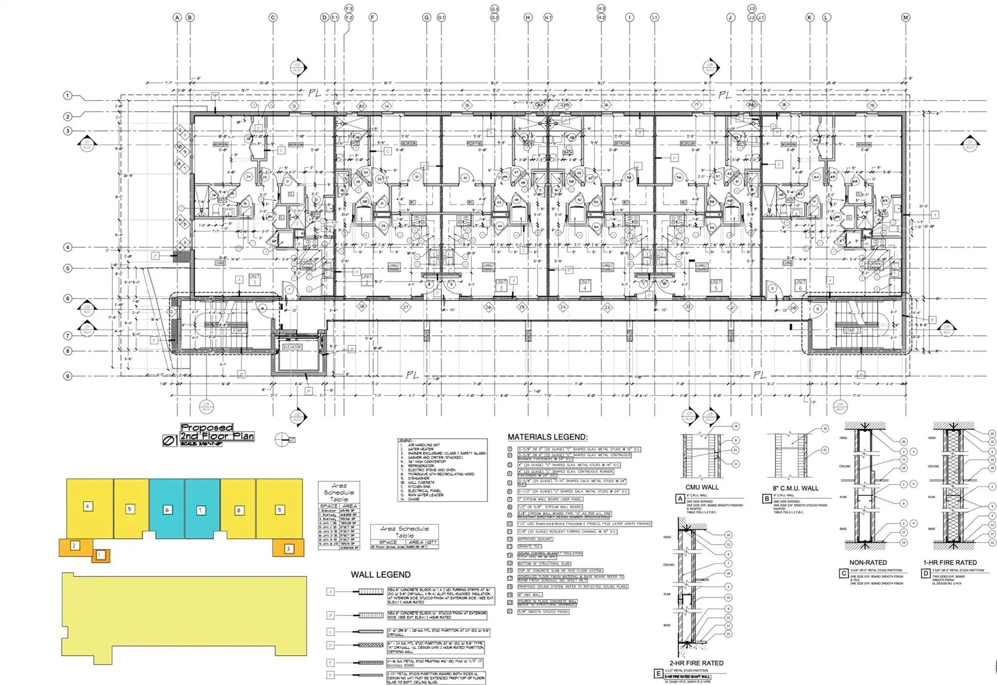
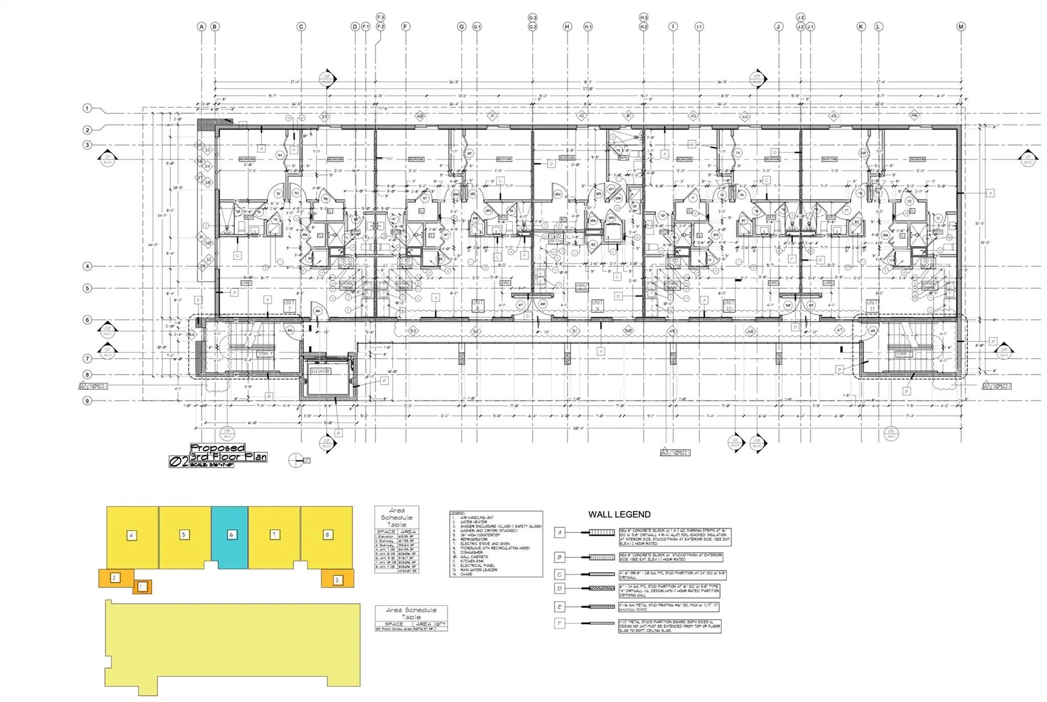
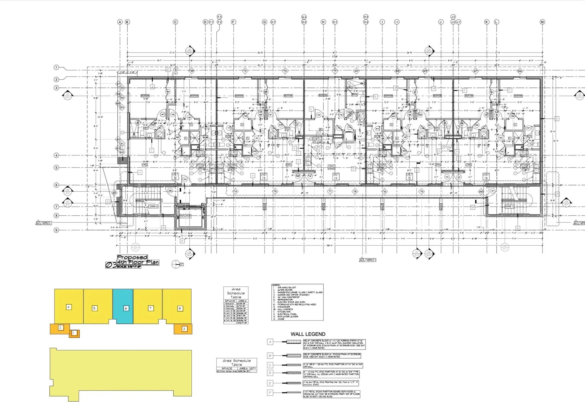
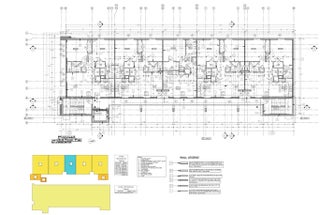
Goulds 214 features a 7,000 SF site with APPROVED plans for a boutique 16-unit apartment building, complete with surface parking; offered at $30k/Door. The property benefits from zoning that permits up to 90 units per acre, offering flexibility and potential for future densification. This prime boutique development opportunity is located just off US 1, less than 2 miles from Florida’s Turnpike, and directly adjacent to the upcoming Bus Rapid Transit (BRT) station, a key component of a collaborative federal-state initiative designed to enhance regional connectivity across the Greater Miami Area. The site is ideally positioned only 1.7 miles from the bustling Southland Mall, which spans one million square feet and features over 100 retailers, with major renovations and redevelopment plans already in motion. In addition, both a Target and Walmart Supercenter are conveniently located nearby. Situated in South Dade, one of Florida’s fastest-growing regions, this location is primed to benefit from strong demographic trends and ongoing infrastructure investment.

Essential Information

  • MLS® #F10507027
  • Price$449,000
  • CAD Dollar$616,575
  • UK Pound£335,006
  • Euro€388,554
  • Acres0.16
  • TypeLand
  • Sub-TypeUnimproved Land
  • StatusPrice Change
  • HOPANo Hopa

Community Information

  • Address11417 Sw 214th
  • Area2600
  • SubdivisionMays Add
  • CityMiami
  • CountyMiami-Dade
  • StateFL
  • Zip Code33189

Exterior

  • Lot DescriptionOther
  • Office: Blue Lighthouse Realty, Inc

Property Location

Please provide a valid email address.

11417 Sw 214th on www.jupiteroceanfronthomes.us

Offered at the current list price of $449,000, this home for sale at 11417 Sw 214th features bedrooms and 0 bathrooms. This real estate listing is located in Mays Add of Miami, FL 33189 . 11417 Sw 214th is listed under the MLS ID of F10507027 and has been available through www.jupiteroceanfronthomes.us for the Miami real estate market for 290 days.

Facts About Miami, FL

Each winter during Carnaval Miami, salsa tunes blare and the smell of spicy chorizo fills the air on Calle Ocho, the commercial thoroughfare and heart of Miami's Little Havana. The roaring street festival, which culminates in the world's longest conga line, is the last of 10 events comprising the Latin-spiked Carnaval.

Similar Listings to 11417 Sw 214th

Photo of Listing #F10489173
  • MLS® #: F10489173
  • 1895 Nw 58th Street
  • Miami, FL 33142
  • $450,000
  • 0.22 Acres
  • Land
Add as Favorite
Photo of Listing #F10540368
  • MLS® #: F10540368
  • 2948 Nw 46th Street
  • Miami, FL 33142
  • $380,000
  • 0.12 Acres
  • Land
Add as Favorite

All listings featuring the BMLS logo are provided by Beaches MLS Inc. Copyright 2026 Beaches MLS. This information is not verified for authenticity or accuracy and is not guaranteed.
© 2026 Beaches Multiple Listing Service, Inc. All rights reserved.

Listing information last updated on March 20th, 2026 at 11:25am CDT.