1. Home
  2. Search Listings
  3. 8119 Nw 33rd St 8119 Doral, FL - 33122-1005
  • MLS® #: A11987932
  • 8119 Nw 33rd St 8119
  • Doral, FL 33122-1005
  • $1,275,000
  • Business

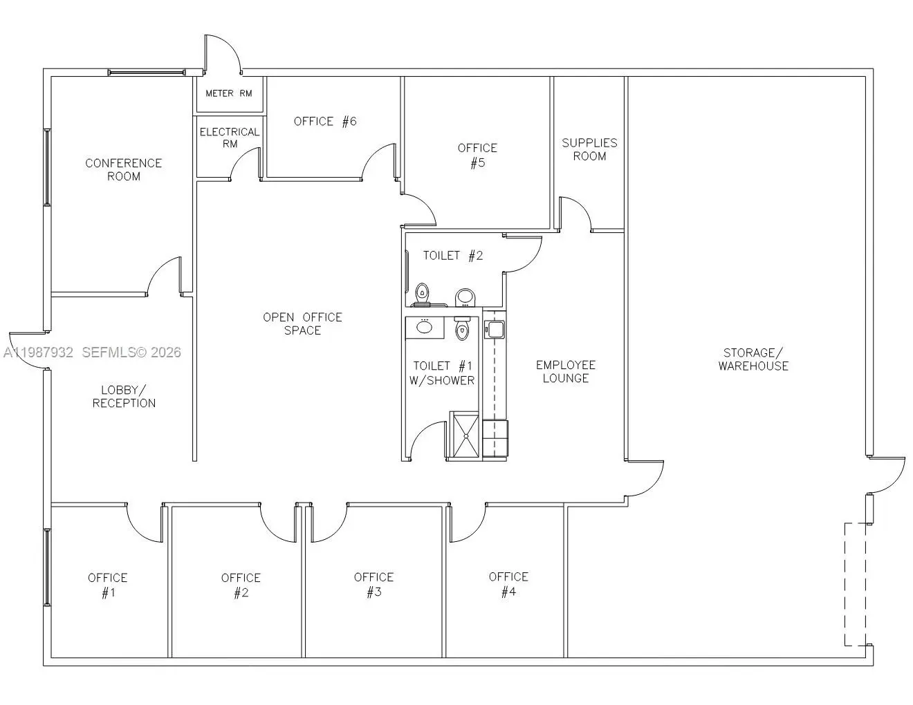
Exceptional end-cap unit featuring a welcoming reception area connected to conference room, 6 private offices, large open office floor plan, an employee lounge, supplies room, and warehouse area with 1 powered roll-up door. 2 restrooms, one of which includes a private shower, a practical amenity for active operational environments. * Office/Warehouse Ratio ±68% / 32% * 7 assigned parking spaces plus an additional space available at the rear roll-up door. The unit also benefits from direct frontage onto the shared guest parking lot serving the center. * Newly installed 240/120V, 200-Amp, 3-Phase electric service, providing robust capacity for a wide range of business operations. * 2 independent A/C systems provide full coverage and built-in redundancy. * Impact-rated windows and storefront entry door. * Insulated, hurricane-rated powered roll-up loading door for warehouse access. * 10 year structural recertification completed in 2022. BROCHURE AND FLOORPLAN ATTACHED

View Virtual Tour

Essential Information

  • MLS® #A11987932
  • Price$1,275,000
  • CAD Dollar$1,778,306
  • UK Pound£965,763
  • Euro€1,106,723
  • HOA Fees1608
  • Bathrooms0.00
  • Year Built1972
  • TypeBusiness
  • Sub-TypeCondominium
  • StatusActive

Community Information

  • Address8119 Nw 33rd St 8119
  • Area30
  • CityDoral
  • CountyMiami-Dade
  • StateFL
  • Zip Code33122-1005

Amenities

  • Parking Spaces7
  • ParkingAssigned, Guest

Interior

  • # of Stories1
  • StoriesOne
  • Office: Miami Commercial Real Estate, Llc.
Please provide a valid email address.

8119 Nw 33rd St 8119 on www.jupiteroceanfronthomes.us

Offered at the current list price of $1,275,000, this home for sale at 8119 Nw 33rd St 8119 features bedrooms and 0 bathrooms. This real estate listing is located in of Doral, FL 33122-1005 . 8119 Nw 33rd St 8119 is listed under the MLS ID of A11987932 and has been on the Doral real estate market for 12 days.

Similar Listings to 8119 Nw 33rd St 8119

Photo of Listing #A11972415
  • MLS® #: A11972415
  • 8105 Nw 33rd St 8105
  • Doral, FL 33122-1005
  • $1,150,000
  • Business
Add as Favorite

The data relating to real estate on this web site comes in part from the Internet Data Exchange program of the MLS of the REALTOR® Association of Greater Miami and the Beaches, and is updated as of April 4th, 2026 at 10:31am CDT (date/time).

All information is deemed reliable but not guaranteed by the MLS and should be independently verified. All properties are subject to prior sale, change, or withdrawal. Neither listing broker(s) nor Waterfront Properties and Club Communities shall be responsible for any typographical errors, misinformation, or misprints, and shall be held totally harmless from any damages arising from reliance upon these data. © 2026 MLS of RAMB.

The information being provided is for consumers' personal, non-commercial use and may not be used for any purpose other than to identify prospective properties consumers may be interested in purchasing