1. Home
  2. Search Listings
  3. 4560 Prairie Ave Miami Beach, FL - 33140-3005
  • MLS® #: A11987596
  • 4560 Prairie Ave
  • Miami Beach, FL 33140-3005
  • $7,400,000
  • 0.28 Acres
  • Land

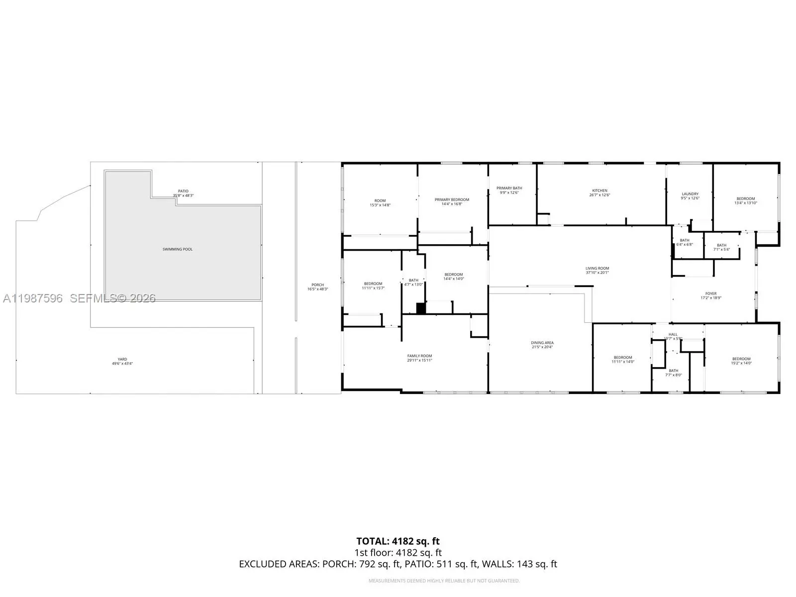
A rare generational waterfront opportunity on prestigious Prairie Ave, offering one of the last oversized waterfront parcels in this coveted Miami Beach residential corridor. Encompassing 12,150 SF with ocean access via canal, this exceptional property is ideally positioned for the creation of a world-class custom estate or luxury redevelopment in a setting defined by premier waterfront residences. The existing 4,400 SF home presents a compelling opportunity for a thoughtful renovation or reimagining, allowing buyers to enhance and customize the current structure while capturing significant upside. Whether renovating to create a refined waterfront residence or building a new signature estate, the flexibility of this offering is unmatched. Surrounded by multi-million-dollar estates and moments from beaches, houses of worship, elite schools, shopping, dining, and the best of Miami Beach living, this property combines location, scale, and lifestyle in a way that is increasingly rare. An exceptional acquisition for end users, visionary builders, or developers seeking long-term value, prestige, and the opportunity to create a standout waterfront residence. Listing broker is an owner of the property.

View Virtual Tour

Essential Information

  • MLS® #A11987596
  • Price$7,400,000
  • CAD Dollar$10,258,916
  • UK Pound£5,521,066
  • Euro€6,332,165
  • Bathrooms0.00
  • Acres0.28
  • TypeLand
  • Sub-TypeResidential
  • StatusActive

Community Information

  • Address4560 Prairie Ave
  • Area32
  • SubdivisionNAUTILUS ADDN
  • CityMiami Beach
  • CountyMiami-Dade
  • StateFL
  • Zip Code33140-3005

Amenities

  • Is WaterfrontYes
  • WaterfrontCanal Front
  • Office: Kenneth Goldring R.e. Broker
Please provide a valid email address.

4560 Prairie Ave on www.jupiteroceanfronthomes.us

Offered at the current list price of $7,400,000, this home for sale at 4560 Prairie Ave features bedrooms and 0 bathrooms. This real estate listing is located in NAUTILUS ADDN of Miami Beach, FL 33140-3005 . 4560 Prairie Ave is listed under the MLS ID of A11987596 and has been on the Miami Beach real estate market for 21 days.

Facts About Miami Beach, FL

Over the past 20 years, no American beach has generated as much buzz as the one that hugs Ocean Drive in Miami Beach. Fringed with palms, backed by Art Deco architecture and pulsating with urban energy, South Beach is the place to stretch out.

Similar Listings to 4560 Prairie Ave

Photo of Listing #A11459360
  • MLS® #: A11459360
  • 433 E Dilido Dr
  • Miami Beach, FL 33139-1271
  • $7,000,000
  • 0.24 Acres
  • Land
Add as Favorite
Photo of Listing #A11995405
  • MLS® #: A11995405
  • 10 S Shore Dr
  • Miami Beach, FL 33141
  • $8,200,000
  • 0.23 Acres
  • Land
Add as Favorite

The data relating to real estate on this web site comes in part from the Internet Data Exchange program of the MLS of the REALTOR® Association of Greater Miami and the Beaches, and is updated as of April 13th, 2026 at 2:49pm CDT (date/time).

All information is deemed reliable but not guaranteed by the MLS and should be independently verified. All properties are subject to prior sale, change, or withdrawal. Neither listing broker(s) nor Waterfront Properties and Club Communities shall be responsible for any typographical errors, misinformation, or misprints, and shall be held totally harmless from any damages arising from reliance upon these data. © 2026 MLS of RAMB.

The information being provided is for consumers' personal, non-commercial use and may not be used for any purpose other than to identify prospective properties consumers may be interested in purchasing