1. Home
  2. Search Listings
  3. 550 Nw 29th St Miami, FL - 33127-3918
  • MLS® #: A11976620
  • 550 Nw 29th St
  • Miami, FL 33127-3918
  • $50,000
  • Business

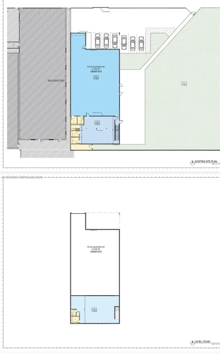
20,000-square-foot private, fully enclosed property located in the heart of Wynwood — Miami's premier cultural and creative district — offering 7,000 square feet of covered industrial space perfect for large corporate offices as well as engineered for high-impact brand activations, sponsor integrations, and production-forward environments.

View Virtual Tour

Essential Information

  • MLS® #A11976620
  • Price$50,000
  • CAD Dollar$69,603
  • UK Pound£37,806
  • Euro€43,348
  • Bathrooms0.00
  • Year Built1981
  • TypeBusiness
  • Sub-TypeBusiness
  • StatusActive

Community Information

  • Address550 Nw 29th St
  • Area31
  • CityMiami
  • CountyMiami-Dade
  • StateFL
  • Zip Code33127-3918
  • Office: Jordan Karp Llc
Please provide a valid email address.

550 Nw 29th St on www.jupiteroceanfronthomes.us

Offered at the current list price of $50,000, this home for sale at 550 Nw 29th St features bedrooms and 0 bathrooms. This real estate listing is located in of Miami, FL 33127-3918 . 550 Nw 29th St is listed under the MLS ID of A11976620 and has been on the Miami real estate market for 34 days.

Facts About Miami, FL

Each winter during Carnaval Miami, salsa tunes blare and the smell of spicy chorizo fills the air on Calle Ocho, the commercial thoroughfare and heart of Miami's Little Havana. The roaring street festival, which culminates in the world's longest conga line, is the last of 10 events comprising the Latin-spiked Carnaval.

The data relating to real estate on this web site comes in part from the Internet Data Exchange program of the MLS of the REALTOR® Association of Greater Miami and the Beaches, and is updated as of April 7th, 2026 at 11:53am CDT (date/time).

All information is deemed reliable but not guaranteed by the MLS and should be independently verified. All properties are subject to prior sale, change, or withdrawal. Neither listing broker(s) nor Waterfront Properties and Club Communities shall be responsible for any typographical errors, misinformation, or misprints, and shall be held totally harmless from any damages arising from reliance upon these data. © 2026 MLS of RAMB.

The information being provided is for consumers' personal, non-commercial use and may not be used for any purpose other than to identify prospective properties consumers may be interested in purchasing