1. Home
  2. Search Listings
  3. 136 Sw 11th Ave Miami, FL - 33130
  • MLS® #: A11975051
  • 136 Sw 11th Ave
  • Miami, FL 33130
  • $750,000
  • 0.11 Acres
  • Land

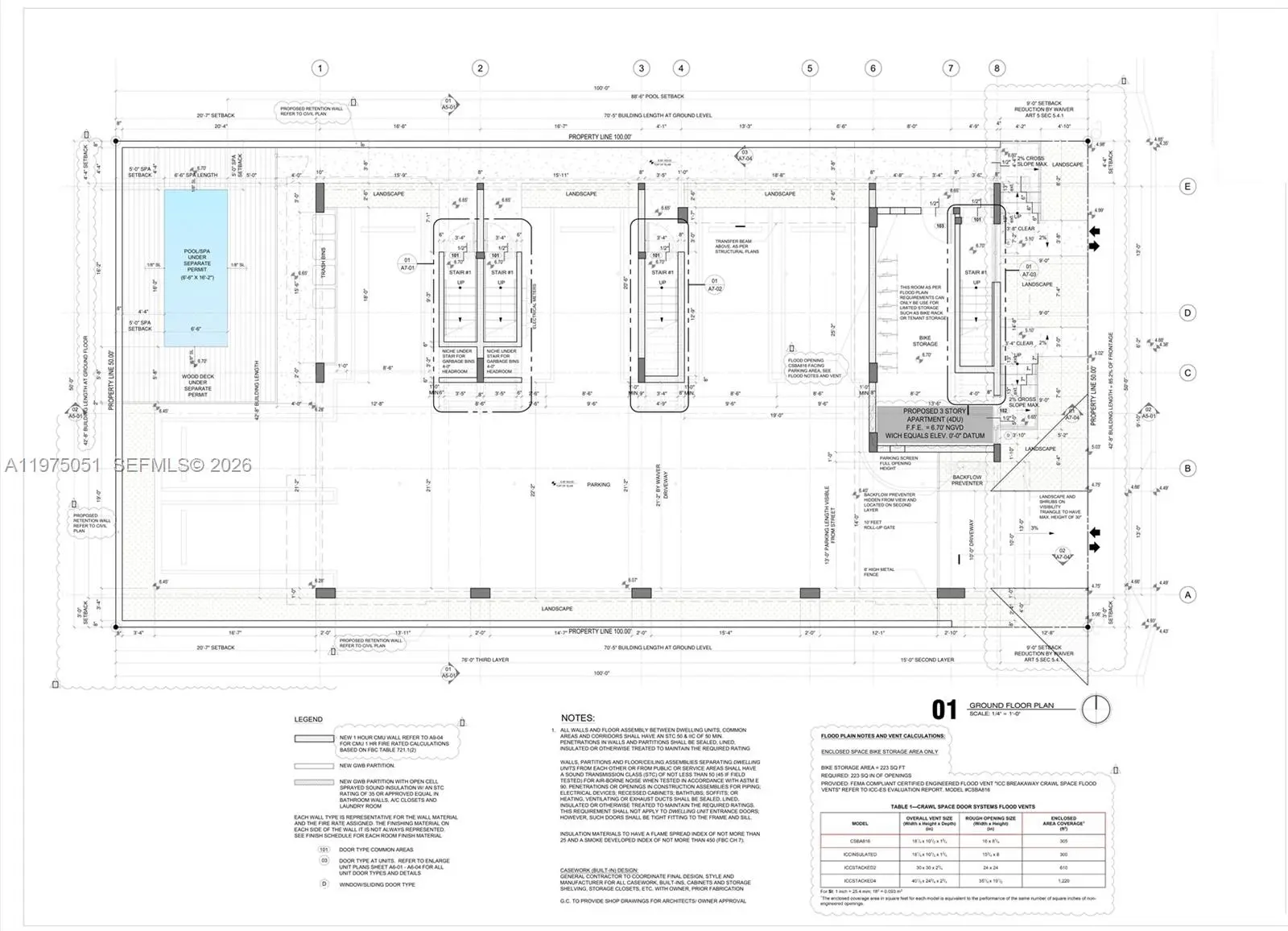
Exceptional opportunity to acquire a 5,000 SF development site in Little Havana with architectural plans for four (4) three-story townhomes. Each unit is designed as a 3 Bed / 3 Bath layout averaging approximately 1,500 SF of A/C space, with dedicated parking (6 spaces total). Plans maximize T4-L zoning density and include a thoughtful site design featuring pool, deck, landscaped areas, and bike storage. Strategically located just off Flagler Street, approximately 3 minutes from Brickell, 5 minutes from I-95, and with immediate access to the 836 Dolphin Expressway. The property is also just a few blocks from LoanDepot Park (Marlins Stadium), placing it within one of Miami’s most connected and rapidly evolving urban neighborhoods. Little Havana continues to see strong residential demand due to its proximity to Brickell, Downtown, and major transit corridors — making this an ideal development opportunity for sell-out or long-term hold strategy. Rare opportunity to step into a near shovel-ready project in a prime infill location. Rare opportunity to step into a near shovel-ready project.

View Virtual Tour

Essential Information

  • MLS® #A11975051
  • Price$750,000
  • CAD Dollar$1,029,541
  • UK Pound£564,693
  • Euro€653,633
  • Bathrooms0.00
  • Acres0.11
  • TypeLand
  • Sub-TypeResidential
  • StatusActive

Community Information

  • Address136 Sw 11th Ave
  • Area41
  • SubdivisionLAWRENCE ESTATE LAND CO
  • CityMiami
  • CountyMiami-Dade
  • StateFL
  • Zip Code33130
  • Office: Fausto Commercial Realty Consultants Inc
Please provide a valid email address.

136 Sw 11th Ave on www.jupiteroceanfronthomes.us

Offered at the current list price of $750,000, this home for sale at 136 Sw 11th Ave features bedrooms and 0 bathrooms. This real estate listing is located in LAWRENCE ESTATE LAND CO of Miami, FL 33130 . 136 Sw 11th Ave is listed under the MLS ID of A11975051 and has been on the Miami real estate market for 16 days.

Facts About Miami, FL

Each winter during Carnaval Miami, salsa tunes blare and the smell of spicy chorizo fills the air on Calle Ocho, the commercial thoroughfare and heart of Miami's Little Havana. The roaring street festival, which culminates in the world's longest conga line, is the last of 10 events comprising the Latin-spiked Carnaval.

Similar Listings to 136 Sw 11th Ave

Photo of Listing #A11796622
  • MLS® #: A11796622
  • 751 Ne 70th St
  • Miami, FL 33138-5711
  • $825,000
  • 0.12 Acres
  • Land
Add as Favorite
Photo of Listing #A11903180
  • MLS® #: A11903180
  • 428 Nw 10th Ave
  • Miami, FL 33128
  • $800,000
  • 0.11 Acres
  • Land
Add as Favorite
Photo of Listing #A11804572
  • MLS® #: A11804572
  • 512 Sw 6th Ave
  • Miami, FL 33130-2710
  • $850,000
  • 0.16 Acres
  • Land
Add as Favorite
Photo of Listing #A11907412
  • MLS® #: A11907412
  • 1101 Nw 5th St
  • Miami, FL 33128-1016
  • $720,000
  • 0.12 Acres
  • Land
Add as Favorite

The data relating to real estate on this web site comes in part from the Internet Data Exchange program of the MLS of the REALTOR® Association of Greater Miami and the Beaches, and is updated as of March 19th, 2026 at 7:16am CDT (date/time).

All information is deemed reliable but not guaranteed by the MLS and should be independently verified. All properties are subject to prior sale, change, or withdrawal. Neither listing broker(s) nor Waterfront Properties and Club Communities shall be responsible for any typographical errors, misinformation, or misprints, and shall be held totally harmless from any damages arising from reliance upon these data. © 2026 MLS of RAMB.

The information being provided is for consumers' personal, non-commercial use and may not be used for any purpose other than to identify prospective properties consumers may be interested in purchasing