1. Home
  2. Search Listings
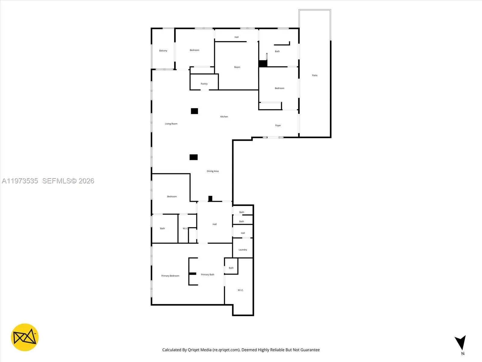
  3. 1330 Ocean Dr 3ca Miami Beach, FL - 33139-4256
  • MLS® #: A11973535
  • 1330 Ocean Dr 3ca
  • Miami Beach, FL 33139-4256
  • $3,950,000
  • 4 Beds, 4 Bath, 3,758 SqFt
  • Residential

Exceptional residence at The Netherland Condominium in the heart of South Beach. This custom-built home offers exceptional quality and finishes throughout, with no expense spared. Elegant and inviting, it features ocean, beach, and park views, four bedrooms, a gourmet kitchen, media room, two terraces, and covered parking. Prime walkable location near top restaurants, shops, and nightlife. Pets and daily rentals allowed.

View Virtual Tour

Essential Information

  • MLS® #A11973535
  • Price$3,950,000
  • CAD Dollar$5,424,211
  • UK Pound£2,947,154
  • Euro€3,418,235
  • Bedrooms4
  • Bathrooms4.00
  • Full Baths3
  • Half Baths1
  • Square Footage3,758
  • Year Built1936
  • TypeResidential
  • Sub-TypeCondominium
  • StatusActive

Community Information

  • Address1330 Ocean Dr 3ca
  • Area32
  • SubdivisionTHE NETHERLAND CONDO
  • CityMiami Beach
  • CountyMiami-Dade
  • StateFL
  • Zip Code33139-4256

Amenities

  • AmenitiesFitness Center, Elevator(s)
  • ParkingAssigned, One Space
  • # of Garages1
  • ViewOcean, Water
  • WaterfrontOcean Access, Ocean Front
  • Pets AllowedNoPetRestrictions,Yes

Interior

  • InteriorMarble, Terrazzo
  • HeatingCentral, Electric
  • CoolingCentral Air, Electric

Interior Features

Built-in Features, Bedroom on Main Level, Dining Area, Separate/Formal Dining Room, Dual Sinks, Eat-in Kitchen, First Floor Entry, Handicap Access, Kitchen Island, Living/Dining Room, Separate Shower, Walk-In Closet(s)

Appliances

Built-In Oven, Dryer, Dishwasher, Electric Range, Microwave, Refrigerator, Washer

Exterior

  • Exterior FeaturesBalcony, Privacy Wall
  • WindowsBlinds
  • ConstructionBlock

School Information

  • MiddleNautilus
  • HighMiami Beach
  • Office: Compass Florida, Llc
Please provide a valid email address.

1330 Ocean Dr 3ca on www.jupiteroceanfronthomes.us

Offered at the current list price of $3,950,000, this home for sale at 1330 Ocean Dr 3ca features 4 bedrooms and 4 bathrooms. This real estate listing is located in THE NETHERLAND CONDO of Miami Beach, FL 33139-4256 and is approximately 3,758 square feet. 1330 Ocean Dr 3ca is listed under the MLS ID of A11973535 and has been on the Miami Beach real estate market for 18 days.

Facts About Miami Beach, FL

Over the past 20 years, no American beach has generated as much buzz as the one that hugs Ocean Drive in Miami Beach. Fringed with palms, backed by Art Deco architecture and pulsating with urban energy, South Beach is the place to stretch out.

Similar Listings to 1330 Ocean Dr 3ca

Photo of Listing #A11541348
  • MLS® #: A11541348
  • 5445 Collins Ave Th2
  • Miami Beach, FL 33140-2593
  • $4,500,000
  • 4 Bed, 4 Bath, 1,460 SqFt
  • Residential
Add as Favorite
Photo of Listing #A11796839
  • MLS® #: A11796839
  • 100 S Pointe Drive 903
  • Miami Beach, FL 33139-7380
  • $3,650,000
  • 1 Bed, 2 Bath, 1,365 SqFt
  • Residential
Add as Favorite
Photo of Listing #A11887242
  • MLS® #: A11887242
  • 102 24 Street 945
  • Miami Beach, FL 33139-1744
  • $4,000,000
  • 2 Bed, 2 Bath, 1,239 SqFt
  • Residential
Add as Favorite
Photo of Listing #A11556953
  • MLS® #: A11556953
  • 2301 Collins Ave 410
  • Miami Beach, FL 33139-1635
  • $3,500,000
  • 2 Bed, 3 Bath, 1,480 SqFt
  • Residential
Add as Favorite

The data relating to real estate on this web site comes in part from the Internet Data Exchange program of the MLS of the REALTOR® Association of Greater Miami and the Beaches, and is updated as of March 20th, 2026 at 11:25am CDT (date/time).

All information is deemed reliable but not guaranteed by the MLS and should be independently verified. All properties are subject to prior sale, change, or withdrawal. Neither listing broker(s) nor Waterfront Properties and Club Communities shall be responsible for any typographical errors, misinformation, or misprints, and shall be held totally harmless from any damages arising from reliance upon these data. © 2026 MLS of RAMB.

The information being provided is for consumers' personal, non-commercial use and may not be used for any purpose other than to identify prospective properties consumers may be interested in purchasing