1. Home
  2. Search Listings
  3. 4403 Woodland Cir Tamarac, FL - 33319-3103
NEW
  • MLS® #: A11973100
  • 4403 Woodland Cir
  • Tamarac, FL 33319-3103
  • $350,000
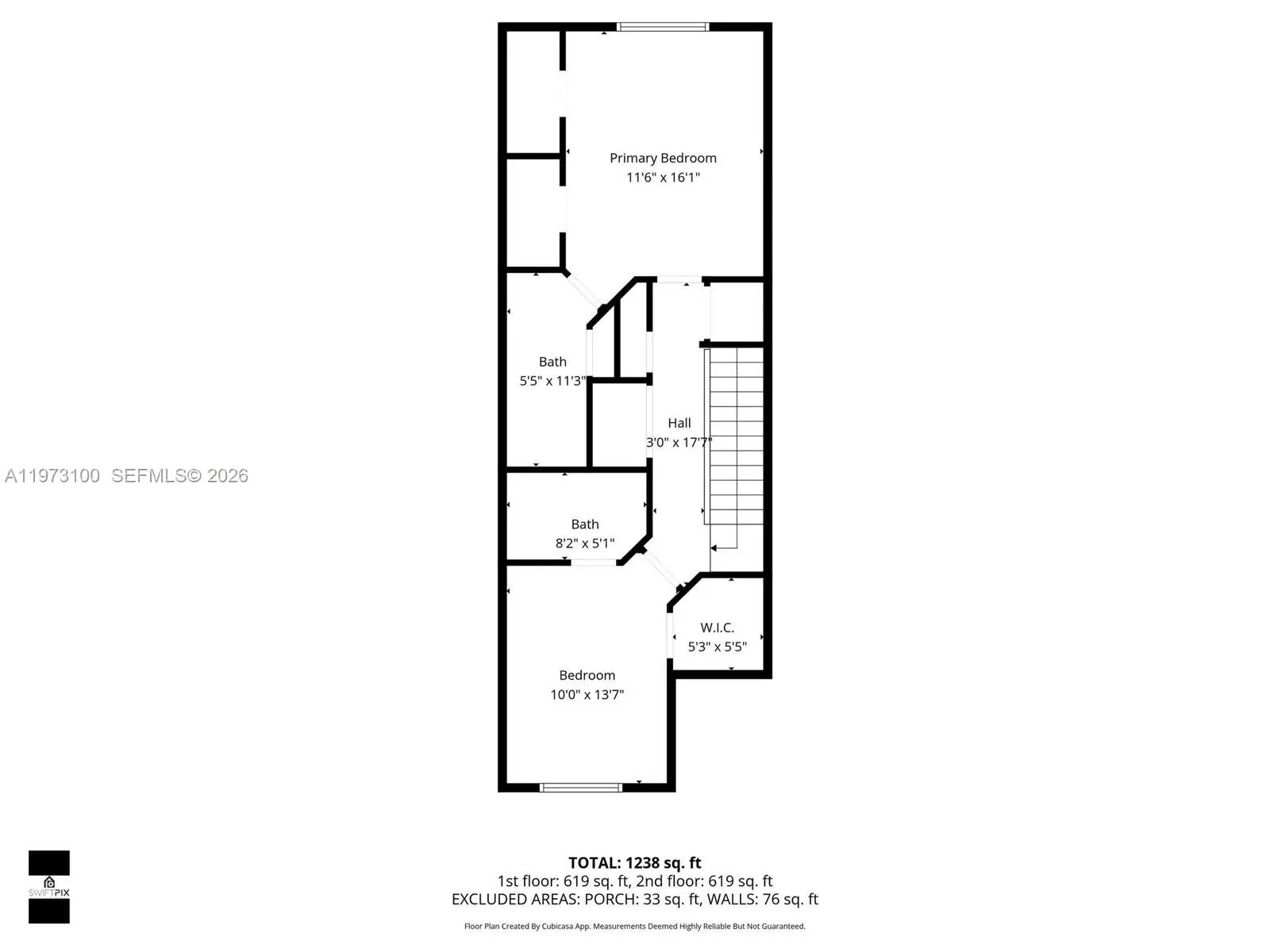
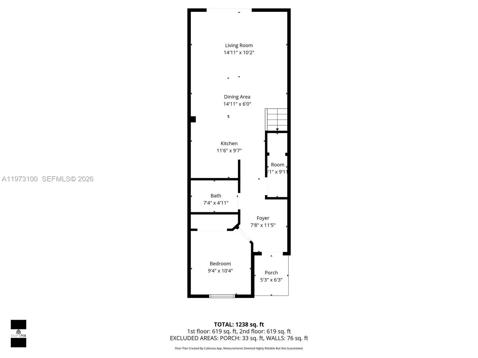
  • 3 Beds, 3 Bath, 1,528 SqFt
  • Residential

This 3 bed, 3 bath townhouse in Woodlands, Tamarac offers over 1,500 sq ft with a bright, open layout and vaulted ceilings. Enjoy a seamless flow from living to a private patio overlooking the canal. One bedroom is on the first floor, with a spacious primary suite upstairs featuring dual sinks and ample closet space. Built in 2007 with concrete block construction, this fee simple home includes multiple parking spaces and a low HOA covering exterior maintenance and cable. Conveniently located near shopping, dining, and major roads, yet tucked away for privacy. Please use ShowingTime for all appointments. Proof of funds or pre-approval required with all offers. Seller requires as-is contract and full DU/approval letter preferred. Verify all information, HOA rules/fees, and room sizes. See broker attachments for disclosures and offer instructions. *AI Photo Disclosure* Some listing images are AI-enhanced or digitally rendered for marketing and may not reflect the property’s current condition. Buyers should verify all details in person. Seller and broker are not liable for reliance on edited images.

View Virtual Tour

Essential Information

  • MLS® #A11973100
  • Price$350,000
  • CAD Dollar$487,594
  • UK Pound£265,209
  • Euro€305,161
  • HOA Fees175
  • Bedrooms3
  • Bathrooms3.00
  • Full Baths3
  • Square Footage1,528
  • Year Built2007
  • TypeResidential
  • Sub-TypeTownhouse
  • StyleCluster Home
  • StatusActive

Community Information

  • Address4403 Woodland Cir
  • Area3740
  • SubdivisionWOODLANDS VILLAS
  • CityTamarac
  • CountyBroward
  • StateFL
  • Zip Code33319-3103

Amenities

  • AmenitiesNone
  • ParkingTwo or More Spaces
  • ViewCanal
  • Is WaterfrontYes
  • WaterfrontCanal Front
  • Pets AllowedConditional,Yes

Interior

  • InteriorCarpet, Tile
  • HeatingCentral, Electric
  • CoolingCentral Air, Ceiling Fan(s)

Interior Features

Bedroom on Main Level, Dual Sinks, Entrance Foyer, First Floor Entry, Living/Dining Room, Split Bedrooms, Upper Level Primary, Vaulted Ceiling(s), Walk-In Closet(s)

Appliances

Dryer, Dishwasher, Electric Range, Disposal, Microwave, Refrigerator, Self Cleaning Oven

Exterior

  • Exterior FeaturesPatio
  • WindowsBlinds
  • ConstructionBlock

School Information

  • ElementaryPinewood
  • MiddleSilver Lks Middle
  • HighBoyd H Anderson
  • Office: Real Broker Llc
Please provide a valid email address.

4403 Woodland Cir on www.jupiteroceanfronthomes.us

Offered at the current list price of $350,000, this home for sale at 4403 Woodland Cir features 3 bedrooms and 3 bathrooms. This real estate listing is located in WOODLANDS VILLAS of Tamarac, FL 33319-3103 and is approximately 1,528 square feet. 4403 Woodland Cir is listed under the MLS ID of A11973100 and has been on the Tamarac real estate market for 5 days.

Similar Listings to 4403 Woodland Cir

Photo of Listing #F10544032
  • MLS® #: F10544032
  • 2851 W Prospect Road #1209
  • Tamarac, FL 33309
  • $299,999
  • 2 Bed, 3 Bath, 1,430 SqFt
  • Residential
Add as Favorite
Photo of Listing #F10532004
  • MLS® #: F10532004
  • 5822 Swordfish Court #c
  • Tamarac, FL 33319
  • $300,000
  • 2 Bed, 3 Bath, 1,380 SqFt
  • Residential
Add as Favorite
Photo of Listing #F10508055
  • MLS® #: F10508055
  • 7650 Nw 79th Avenue #m5
  • Tamarac, FL 33321
  • $325,000
  • 3 Bed, 3 Bath, 1,651 SqFt
  • Residential
Add as Favorite
Photo of Listing #F10537819
  • MLS® #: F10537819
  • 8464 Lagos De Campo Boulevard
  • Tamarac, FL 33321
  • $399,000
  • 2 Bed, 3 Bath, 1,422 SqFt
  • Residential
Add as Favorite

The data relating to real estate on this web site comes in part from the Internet Data Exchange program of the MLS of the REALTOR® Association of Greater Miami and the Beaches, and is updated as of March 31st, 2026 at 7:15pm CDT (date/time).

All information is deemed reliable but not guaranteed by the MLS and should be independently verified. All properties are subject to prior sale, change, or withdrawal. Neither listing broker(s) nor Waterfront Properties and Club Communities shall be responsible for any typographical errors, misinformation, or misprints, and shall be held totally harmless from any damages arising from reliance upon these data. © 2026 MLS of RAMB.

The information being provided is for consumers' personal, non-commercial use and may not be used for any purpose other than to identify prospective properties consumers may be interested in purchasing