1. Home
  2. Search Listings
  3. 3160 Nw 135th St Opa Locka, FL - 33054-5043
NEW
  • MLS® #: A11931734
  • 3160 Nw 135th St
  • Opa Locka, FL 33054-5043
  • $1,995,000
  • 0.48 Acres
  • Land

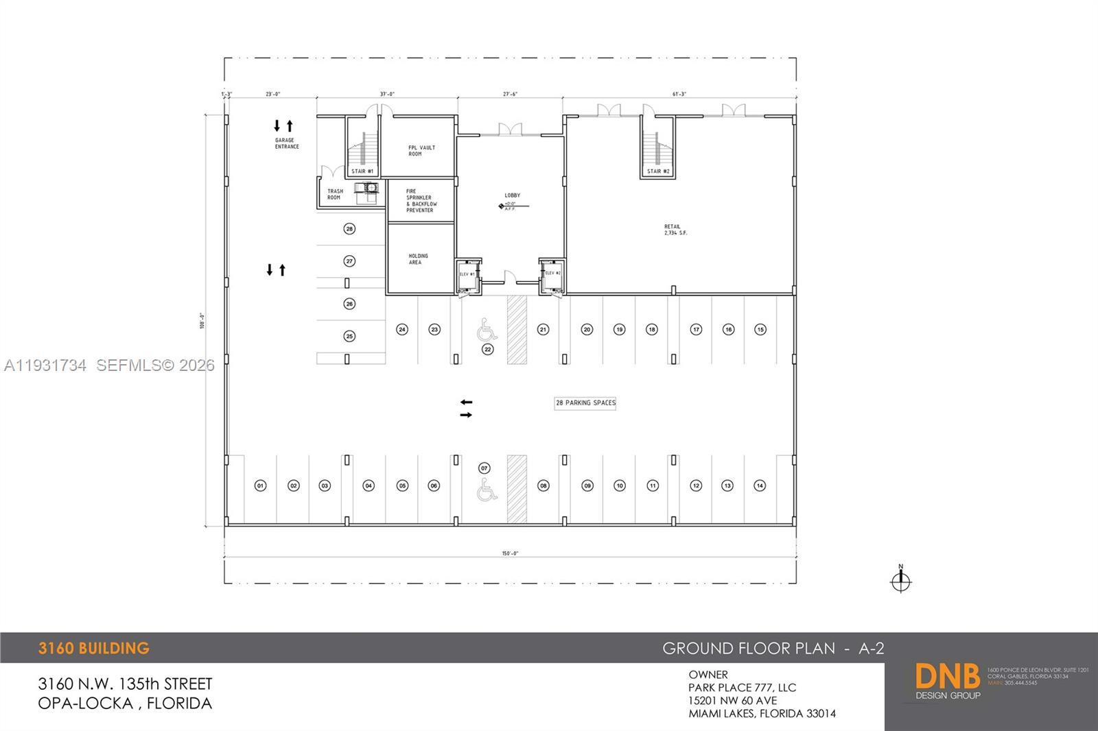
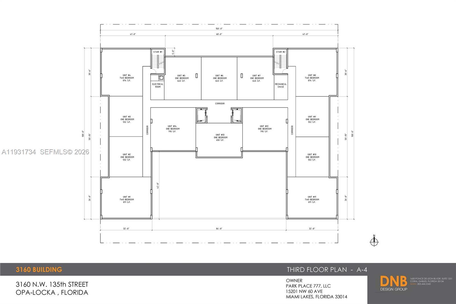
Redevelopment and Income Generating Opportunity in Opa-Locka This offering comprises three adjacent lots totaling 20,750 sq. ft. with 150 linear feet of frontage along NW 135th Street and 32nd Avenue in the City of Opa-Locka. One parcel features a 4-unit building with new roof as of 9/2025, currently leased to month-to-month tenants at below-market rents, generating approximately $60,000 in annual gross income. The other two parcels are vacant, providing significant development potential alone or adding the adjacent building's lot. Located within Opa-Locka’s mixed-use corridor, the property benefits from as-of-right zoning that permits up to 71 residential units across 8 stories for market-rate tenancy. The site is within walking distance of the Amazon distribution center and mass transit stops, adding strong appeal for future residents. Preliminary site plans have been prepared for both a 69-unit/80 Parking space development and a smaller 28-unit/30 Parking space project, offering flexibility for investors and developers. the property also qualifies for other commercial and retail zoning applications, creating additional opportunities for mixed-use development. Discussions with city officials have already taken place, and they are enthusiastic about welcoming a strong project to the area. Incentives may be available to support development.

View Virtual Tour

Essential Information

  • MLS® #A11931734
  • Price$1,995,000
  • CAD Dollar$2,757,445
  • UK Pound£1,485,820
  • Euro€1,706,760
  • Bathrooms0.00
  • Acres0.48
  • TypeLand
  • Sub-TypeResidential
  • StatusActive

Community Information

  • Address3160 Nw 135th St
  • Area21
  • SubdivisionNILE GARDENS SEC 2
  • CityOpa Locka
  • CountyMiami-Dade
  • StateFL
  • Zip Code33054-5043
  • Office: Premier Real Estate Sales Inc.

Property Location

Please provide a valid email address.

3160 Nw 135th St on www.jupiteroceanfronthomes.us

Offered at the current list price of $1,995,000, this home for sale at 3160 Nw 135th St features 0 bedrooms and 0 bathrooms. This real estate listing is located in NILE GARDENS SEC 2 of Opa Locka, FL 33054-5043 . 3160 Nw 135th St is listed under the MLS ID of A11931734 and has been on the Opa Locka real estate market for 3 days.

The data relating to real estate on this web site comes in part from the Internet Data Exchange program of the MLS of the REALTOR® Association of Greater Miami and the Beaches, and is updated as of January 22nd, 2026 at 11:01pm CST (date/time).

All information is deemed reliable but not guaranteed by the MLS and should be independently verified. All properties are subject to prior sale, change, or withdrawal. Neither listing broker(s) nor Waterfront Properties and Club Communities shall be responsible for any typographical errors, misinformation, or misprints, and shall be held totally harmless from any damages arising from reliance upon these data. © 2026 MLS of RAMB.

The information being provided is for consumers' personal, non-commercial use and may not be used for any purpose other than to identify prospective properties consumers may be interested in purchasing