1. Home
  2. Search Listings
  3. 8700 Sw 159th St Palmetto Bay, FL - 33157-2045
  • MLS® #: A11923257
  • 8700 Sw 159th St
  • Palmetto Bay, FL 33157-2045
  • $1,149,000
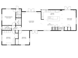
  • 3 Beds, 2 Bath, 1,902 SqFt
  • Residential

Palmetto Bay Paradise! Welcome to a home you’ll never want to leave - especially the backyard. Enjoy a sparkling heated pool, spacious Chickee Hut, exceptional outdoor entertaining areas surrounded by lush, private landscaping. This corner-lot gem offers both comfort and peace of mind with impact doors and windows, a flat tile roof (2011), and fully replaced HVAC ductwork (2023). Additional upgrades include relined pipes with a 50-year warranty, dusk-to-dawn LED exterior lighting, and a stamped concrete driveway. Open-concept layout features wood floors, two new ovens, and a new washer and dryer. A powered storage shed adds extra functionality and convenience. This home is the perfect blend of style, thoughtful upgrades, and outdoor enjoyment—true Palmetto Bay living at its finest.

View Virtual Tour

Essential Information

  • MLS® #A11923257
  • Price$1,149,000
  • CAD Dollar$1,599,925
  • UK Pound£858,391
  • Euro€989,962
  • Bedrooms3
  • Bathrooms2.00
  • Full Baths2
  • Square Footage1,902
  • Year Built1965
  • TypeResidential
  • Sub-TypeSingle Family Residence
  • StyleDetached, Ranch, One Story
  • StatusActive

Community Information

  • Address8700 Sw 159th St
  • Area50
  • SubdivisionCORAL REEF ESTATES
  • CityPalmetto Bay
  • CountyMiami-Dade
  • StateFL
  • Zip Code33157-2045

Amenities

  • ParkingDriveway, RV Access/Parking
  • ViewGarden, Pool
  • Pets AllowedNoPetRestrictions,Yes

Interior

  • InteriorHardwood, Wood
  • HeatingCentral, Electric
  • CoolingCentral Air, Electric
  • # of Stories1

Appliances

Dryer, Dishwasher, Electric Range, Electric Water Heater, Disposal, Microwave, Refrigerator, Washer

Exterior

  • Exterior FeaturesFence, Lighting, Other, Shed
  • WindowsBlinds, Impact Glass
  • RoofFlat, Tile
  • ConstructionBlock

School Information

  • ElementaryCoral Reef
  • MiddleSouthwood
  • HighMiami Palmetto
  • Office: Bhhs Ewm Realty

Property Location

Please provide a valid email address.

8700 Sw 159th St on www.jupiteroceanfronthomes.us

Offered at the current list price of $1,149,000, this home for sale at 8700 Sw 159th St features 3 bedrooms and 2 bathrooms. This real estate listing is located in CORAL REEF ESTATES of Palmetto Bay, FL 33157-2045 and is approximately 1,902 square feet. 8700 Sw 159th St is listed under the MLS ID of A11923257 and has been on the Palmetto Bay real estate market for 40 days.

Similar Listings to 8700 Sw 159th St

Photo of Listing #A11781720
  • MLS® #: A11781720
  • 17020 Sw 87th Ct
  • Palmetto Bay, FL 33157-4639
  • $1,199,800
  • 4 Bed, 3 Bath, 2,332 SqFt
  • Residential
Add as Favorite
Photo of Listing #A11797698
  • MLS® #: A11797698
  • 8501 Sw 142nd St
  • Palmetto Bay, FL 33158-1054
  • $1,000,000
  • 4 Bed, 2 Bath, 1,860 SqFt
  • Residential
Add as Favorite
Photo of Listing #A11835572
  • MLS® #: A11835572
  • 15200 Sw 81st Ave
  • Palmetto Bay, FL 33157-2207
  • $1,299,999
  • 4 Bed, 3 Bath, 2,875 SqFt
  • Residential
Add as Favorite
Photo of Listing #A11846272
  • MLS® #: A11846272
  • 15424 Sw 77th Ct
  • Palmetto Bay, FL 33157-2343
  • $1,259,900
  • 4 Bed, 2 Bath, 2,364 SqFt
  • Residential
Add as Favorite

The data relating to real estate on this web site comes in part from the Internet Data Exchange program of the MLS of the REALTOR® Association of Greater Miami and the Beaches, and is updated as of January 18th, 2026 at 7:45am CST (date/time).

All information is deemed reliable but not guaranteed by the MLS and should be independently verified. All properties are subject to prior sale, change, or withdrawal. Neither listing broker(s) nor Waterfront Properties and Club Communities shall be responsible for any typographical errors, misinformation, or misprints, and shall be held totally harmless from any damages arising from reliance upon these data. © 2026 MLS of RAMB.

The information being provided is for consumers' personal, non-commercial use and may not be used for any purpose other than to identify prospective properties consumers may be interested in purchasing