1. Home
  2. Search Listings
  3. 4033 26th Other, FL - 33976
  • MLS® #: A11906382
  • 4033 26th
  • Other, FL 33976
  • $34,900
  • 10890.00 Acres
  • Land

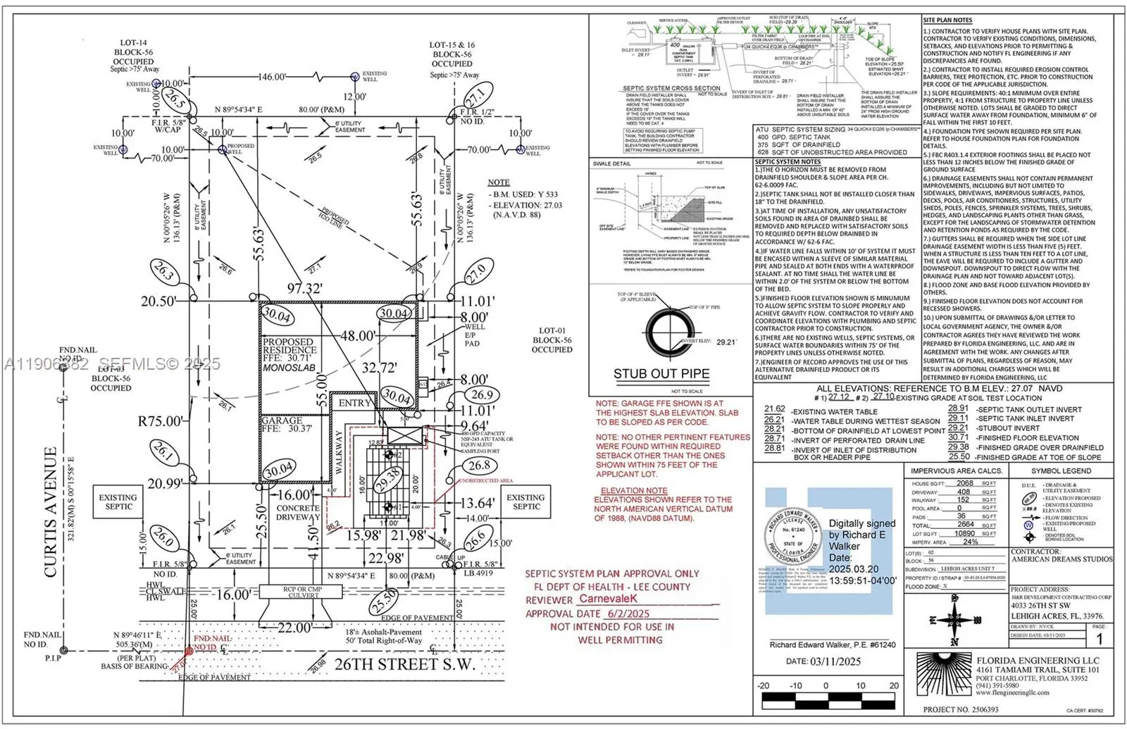
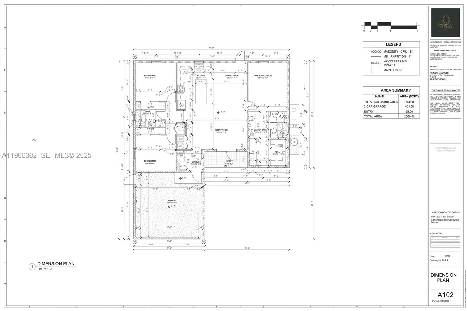
The survey has already been completed, and a model plan has been approved, so it is READY to build the property. Located in a rapidly growing area, these properties present an excellent investment opportunity. The 33976 zip code is the most popular in Lehigh Acres. Spanish is also spoken in the area. They are close to Southwest Florida International Airport, Fort Myers beaches, I-75, SR 82, shopping centers, medical services, schools, restaurants, JetBlue Park, and more. What truly sets this property apart is that it includes advanced planning and development work for a contemporary style home, saving the buyer months of paperwork, upfront costs, and administrative risk. The package includes: Complete architectural design for a contemporary 2,068 sq ft home with 3 BEDROOMS, 2 FULL BATHROOMS, and a 2-CAR GARAGE + Completed topographic survey, ready for immediate use + Approved floor plans, ready to proceed with final permitting + Approved SEPTIC SYSTEM design, including the AEROBIC TREATMENT UNIT, meeting all current county requirements. No trees to remove. Compared to other raw lots in the area, this parcel offers substantial savings in technical studies, engineering, design work, and permitting time, which fully justifies its higher market value. This property is READY to build. Located in a rapidly growing area, 33976 is one of the most sought-after areas in Lehigh Acres.

View Virtual Tour

Essential Information

  • MLS® #A11906382
  • Price$34,900
  • CAD Dollar$48,292
  • UK Pound£26,003
  • Euro€29,864
  • Bathrooms0.00
  • Acres10,890.00
  • TypeLand
  • Sub-TypeResidential
  • StatusActive

Community Information

  • Address4033 26th
  • Area5940 Florida Other
  • SubdivisionLehigh Acres
  • CityOther
  • CountyLee
  • StateFL
  • Zip Code33976
  • Office: K & A Realty

Property Location

Please provide a valid email address.

4033 26th on www.jupiteroceanfronthomes.us

Offered at the current list price of $34,900, this home for sale at 4033 26th features bedrooms and 0 bathrooms. This real estate listing is located in Lehigh Acres of Other, FL 33976 . 4033 26th is listed under the MLS ID of A11906382 and has been on the Other real estate market for 160 days.

Similar Listings to 4033 26th

Photo of Listing #A11885579
  • MLS® #: A11885579
  • 3913 14th St Sw
  • Other, FL 33976
  • $35,000
  • 0.33 Acres
  • Land
Add as Favorite
Photo of Listing #A11205159
  • MLS® #: A11205159
  • 60 Circle Marion Oaks Manor
  • Other, FL 34473
  • $35,000
  • 0.29 Acres
  • Land
Add as Favorite
Photo of Listing #A11807121
  • MLS® #: A11807121
  • Sw Lemon Hill Dr
  • Other, FL 34431
  • $35,000
  • 1.01 Acres
  • Land
Add as Favorite
Photo of Listing #A11818694
  • MLS® #: A11818694
  • 2940 W Plantation Pines Ct
  • Other, FL 34461
  • $34,500
  • 0.3 Acres
  • Land
Add as Favorite

The data relating to real estate on this web site comes in part from the Internet Data Exchange program of the MLS of the REALTOR® Association of Greater Miami and the Beaches, and is updated as of April 11th, 2026 at 2:14am CDT (date/time).

All information is deemed reliable but not guaranteed by the MLS and should be independently verified. All properties are subject to prior sale, change, or withdrawal. Neither listing broker(s) nor Waterfront Properties and Club Communities shall be responsible for any typographical errors, misinformation, or misprints, and shall be held totally harmless from any damages arising from reliance upon these data. © 2026 MLS of RAMB.

The information being provided is for consumers' personal, non-commercial use and may not be used for any purpose other than to identify prospective properties consumers may be interested in purchasing