1. Home
  2. Search Listings
  3. 7025 Nw 7th Ave #main Miami, FL - 33150-3811
NEW
  • MLS® #: A11905580
  • 7025 Nw 7th Ave #main
  • Miami, FL 33150-3811
  • $8,000
  • Business

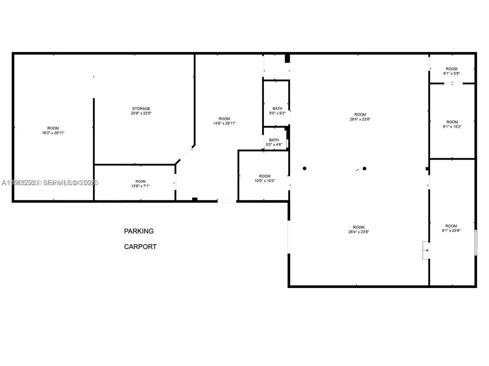
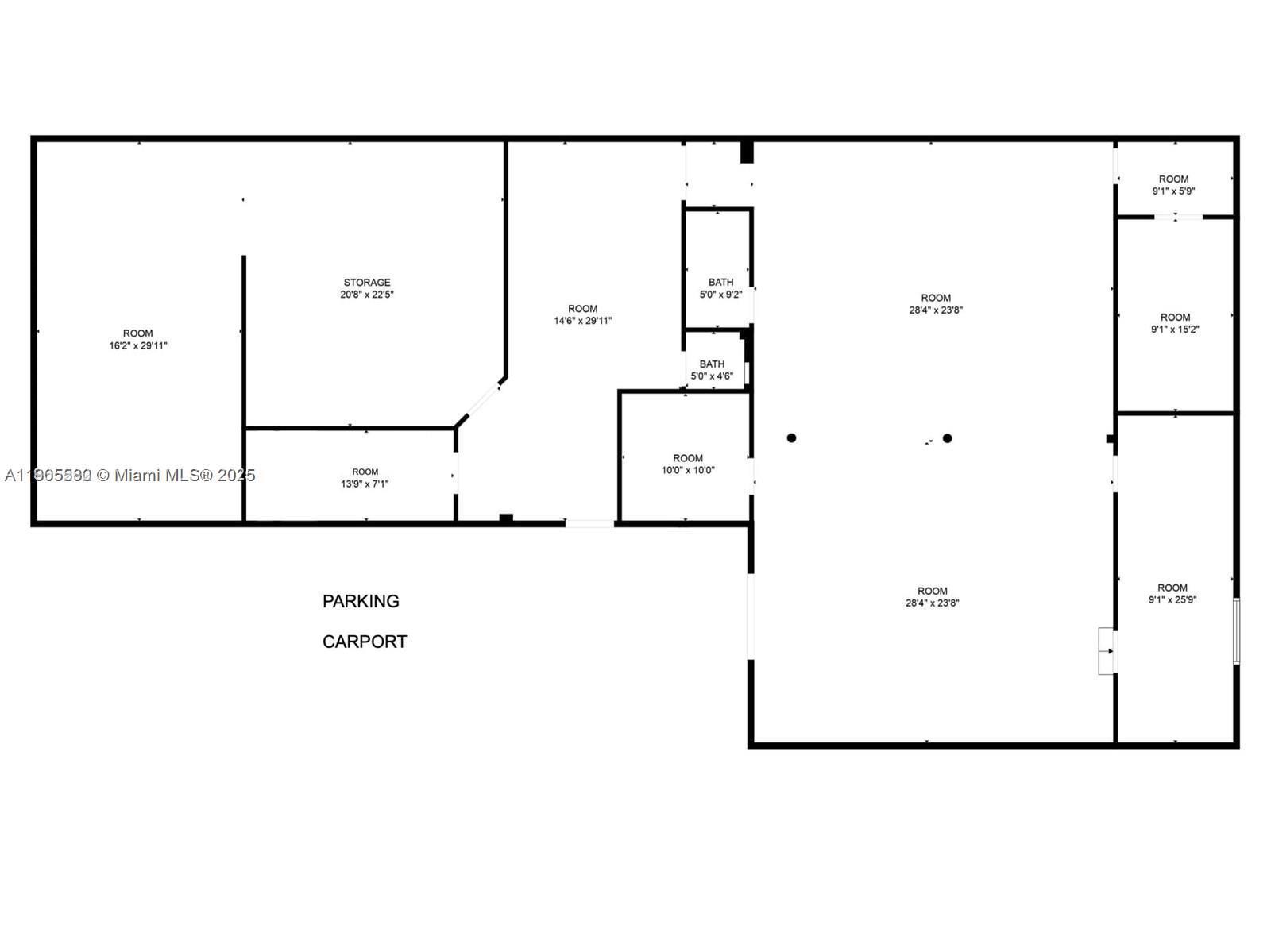
Ideal setup for creatives, small business owners, or anyone needing flexible space to work and build. This property features three private offices (currently used as fully equipped music studios), plus a large warehouse section with two-level racking systems, an open floor plan perfect for coworking or production, and a full kitchen already in place. Private parking for 5 cars with additional space next door if needed. This space can be adapted for manufacturing, storage, distribution, or office use. If interested, the 3 sound-treated studios come with computers and audio systems ready to go. Located just minutes from Downtown with fast access to I-95. Available for Lease with option to Purchase. Contact the agent for full details or a private showing.

View Virtual Tour

Essential Information

  • MLS® #A11905580
  • Price$8,000
  • CAD Dollar$11,289
  • UK Pound£6,144
  • Euro€6,963
  • Bathrooms0.00
  • Acres0.00
  • Year Built1947
  • TypeBusiness
  • Sub-TypeCommercial
  • StatusActive

Community Information

  • Address7025 Nw 7th Ave #main
  • Area31
  • CityMiami
  • CountyMiami-Dade
  • StateFL
  • Zip Code33150-3811

Amenities

  • ParkingGarage

Interior

  • # of Stories1
  • StoriesOne

Exterior

  • RoofOther
  • ConstructionBlock
  • Office: Compass Florida, Llc

Property Location

Please provide a valid email address.

7025 Nw 7th Ave #main on www.jupiteroceanfronthomes.us

Offered at the current list price of $8,000, this home for sale at 7025 Nw 7th Ave #main features 0 bedrooms and 0 bathrooms. This real estate listing is located in of Miami, FL 33150-3811 . 7025 Nw 7th Ave #main is listed under the MLS ID of A11905580 and has been on the Miami real estate market for 0 days.

Facts About Miami, FL

Each winter during Carnaval Miami, salsa tunes blare and the smell of spicy chorizo fills the air on Calle Ocho, the commercial thoroughfare and heart of Miami's Little Havana. The roaring street festival, which culminates in the world's longest conga line, is the last of 10 events comprising the Latin-spiked Carnaval.

Similar Listings to 7025 Nw 7th Ave #main

Photo of Listing #A11746754
  • MLS® #: A11746754
  • 1186 Nw 103rd St
  • Miami, FL 33150-1038
  • $8,076
  • Business
Add as Favorite
Photo of Listing #A11888228
  • MLS® #: A11888228
  • 7021 Sw 13th Ter
  • Miami, FL 33144-5410
  • $8,500
  • Business
Add as Favorite

The data relating to real estate on this web site comes in part from the Internet Data Exchange program of the MLS of the REALTOR® Association of Greater Miami and the Beaches, and is updated as of November 5th, 2025 at 6:49am CST (date/time).

All information is deemed reliable but not guaranteed by the MLS and should be independently verified. All properties are subject to prior sale, change, or withdrawal. Neither listing broker(s) nor Waterfront Properties and Club Communities shall be responsible for any typographical errors, misinformation, or misprints, and shall be held totally harmless from any damages arising from reliance upon these data. © 2025 MLS of RAMB.

The information being provided is for consumers' personal, non-commercial use and may not be used for any purpose other than to identify prospective properties consumers may be interested in purchasing