1. Home
  2. Search Listings
  3. 924 El Rado St Coral Gables, FL - 33134-2273
  • MLS® #: A11904488
  • 924 El Rado St
  • Coral Gables, FL 33134-2273
  • $995,000
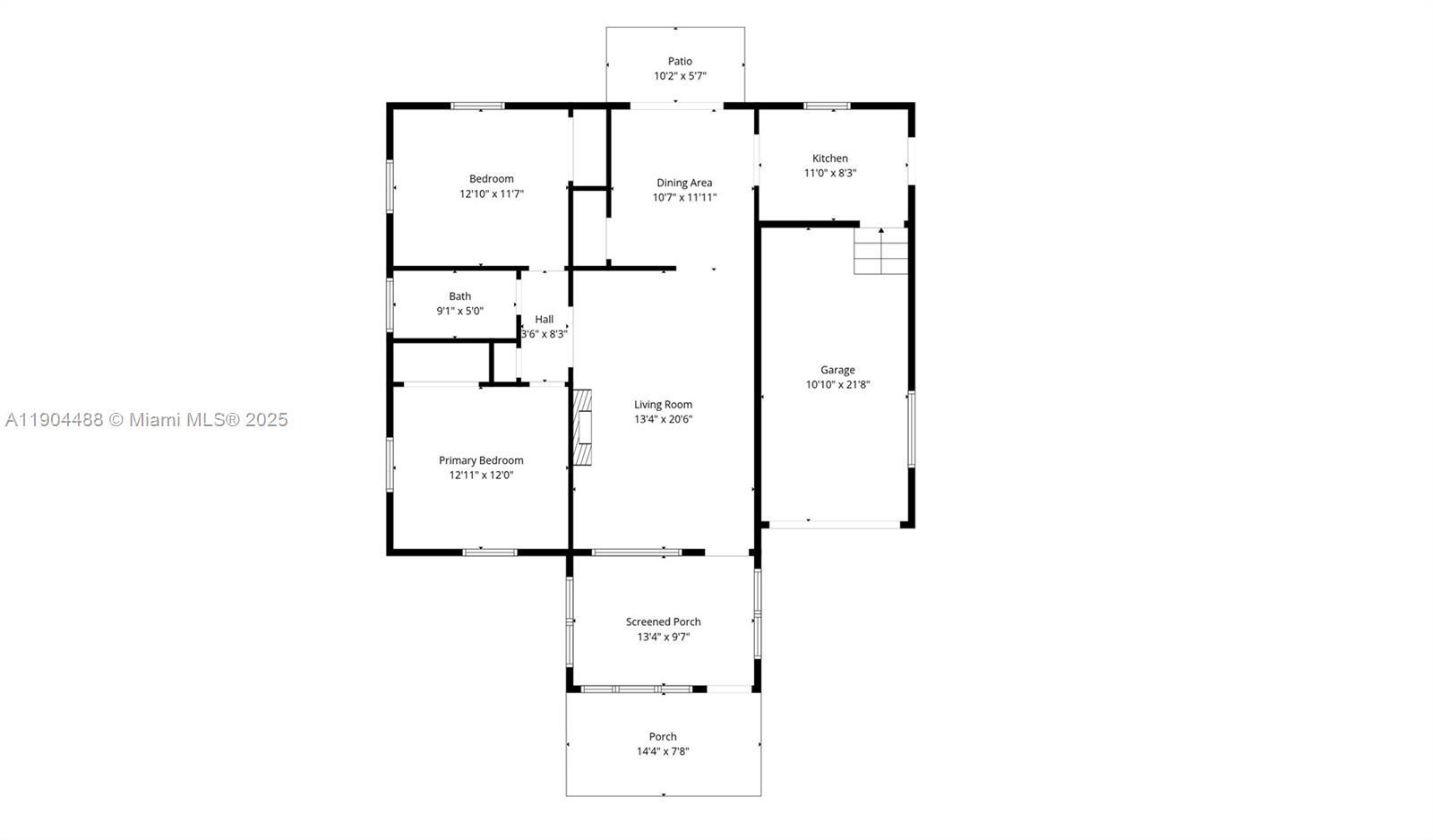
  • 2 Beds, 1 Bath, 1,181 SqFt
  • Residential

Nestled on one of North Gables’ quietest streets, this classic 2-bedroom, 1-bath home captures timeless Coral Gables charm. Overlooking Lisbon Park, it sits on a 6,773 sq. ft. lot surrounded by mature trees and natural light, offering rare privacy in this coveted area. A fully paved driveway enhances its curb appeal, while the bright sunroom opens to a warm living space with original pine floors and a cozy fireplace. The backyard offers room to expand, add a pool, or design your ideal outdoor retreat. Additional features include a 1-car garage and a prime location close to everything Coral Gables has to offer.

View Virtual Tour

Essential Information

  • MLS® #A11904488
  • Price$995,000
  • CAD Dollar$1,370,795
  • UK Pound£743,162
  • Euro€848,123
  • Bedrooms2
  • Bathrooms1.00
  • Full Baths1
  • Square Footage1,181
  • Year Built1950
  • TypeResidential
  • Sub-TypeSingle Family Residence
  • StyleOne Story
  • StatusPending

Community Information

  • Address924 El Rado St
  • Area41
  • SubdivisionTAMIAMI PLACE PLAN 2
  • CityCoral Gables
  • CountyMiami-Dade
  • StateFL
  • Zip Code33134-2273

Amenities

  • FeaturesOther
  • # of Garages1
  • GaragesGarage Door Opener
  • ViewGarden

Parking

Covered, Driveway, Guest, On Street

Interior

  • InteriorHardwood, Wood
  • HeatingNone
  • CoolingCentral Air
  • # of Stories1

Appliances

Dryer, Dishwasher, Microwave, Washer

Exterior

  • Exterior FeaturesPatio, Storm/Security Shutters
  • RoofFlat, Tile
  • ConstructionBlock
  • FoundationRaised

School Information

  • ElementarySunset
  • MiddlePonce De Leon
  • HighCoral Gables
  • Office: Compass Florida, Llc

Property Location

Please provide a valid email address.

924 El Rado St on www.jupiteroceanfronthomes.us

Offered at the current list price of $995,000, this home for sale at 924 El Rado St features 2 bedrooms and 1 bathrooms. This real estate listing is located in TAMIAMI PLACE PLAN 2 of Coral Gables, FL 33134-2273 and is approximately 1,181 square feet. 924 El Rado St is listed under the MLS ID of A11904488 and has been on the Coral Gables real estate market for 25 days.

Similar Listings to 924 El Rado St

Photo of Listing #A11402836
  • MLS® #: A11402836
  • 812 Columbus Blvd
  • Coral Gables, FL 33134-2306
  • $875,000
  • 2 Bed, 2 Bath, 1,276 SqFt
  • Residential
Add as Favorite
Photo of Listing #A11636945
  • MLS® #: A11636945
  • N/a
  • Coral Gables, FL 33134-3302
  • $1,100,000
  • 4 Bed, 2 Bath, 1,971 SqFt
  • Residential
Add as Favorite
Photo of Listing #A11819319
  • MLS® #: A11819319
  • 1409 Medina Ave
  • Coral Gables, FL 33134-2247
  • $1,099,000
  • 2 Bed, 2 Bath, 1,273 SqFt
  • Residential
Add as Favorite
Photo of Listing #A11848518
  • MLS® #: A11848518
  • 2217 Red Rd
  • Coral Gables, FL 33155
  • $956,000
  • 4 Bed, 3 Bath, 2,041 SqFt
  • Residential
Add as Favorite

The data relating to real estate on this web site comes in part from the Internet Data Exchange program of the MLS of the REALTOR® Association of Greater Miami and the Beaches, and is updated as of December 12th, 2025 at 9:34am CST (date/time).

All information is deemed reliable but not guaranteed by the MLS and should be independently verified. All properties are subject to prior sale, change, or withdrawal. Neither listing broker(s) nor Waterfront Properties and Club Communities shall be responsible for any typographical errors, misinformation, or misprints, and shall be held totally harmless from any damages arising from reliance upon these data. © 2025 MLS of RAMB.

The information being provided is for consumers' personal, non-commercial use and may not be used for any purpose other than to identify prospective properties consumers may be interested in purchasing