1. Home
  2. Search Listings
  3. 1361 Nw 155th Dr Miami Gardens, FL - 33169-5723
NEW
  • MLS® #: A11903991
  • 1361 Nw 155th Dr
  • Miami Gardens, FL 33169-5723
  • $14
  • Business

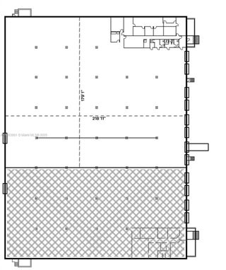
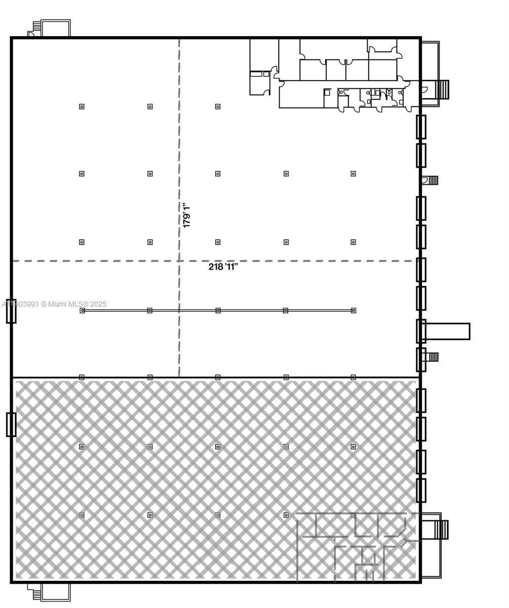
Located in the Sunshine State Industrial Park, this ±39,000 SF warehouse (±36,200 SF warehouse + ±2,800 SF office) offers modern functionality and unbeatable logistics access. With 22-foot clear height, heavy 3-phase power, 8 dock-height doors, and a secure fenced lot, this property is ideal for distribution, manufacturing, or logistics operations. The property offers immediate access to the Golden Glades Interchange, connecting SR-826 (Palmetto Expressway), Florida’s Turnpike, and I-95 — providing direct routes to Port of Miami, Miami International Airport, and key South Florida markets. Available May 1, 2026, with the sublease running through May 1, 2030 $14.00/SF Gross.

View Virtual Tour

Essential Information

  • MLS® #A11903991
  • Price$14
  • CAD Dollar$20
  • UK Pound£11
  • Euro€12
  • Bathrooms0.00
  • Acres0.00
  • Year Built1973
  • TypeBusiness
  • Sub-TypeIndustrial
  • StatusActive

Community Information

  • Address1361 Nw 155th Dr
  • Area21
  • CityMiami Gardens
  • CountyMiami-Dade
  • StateFL
  • Zip Code33169-5723
  • Office: Industrial Advisors

Property Location

Please provide a valid email address.

1361 Nw 155th Dr on www.jupiteroceanfronthomes.us

Offered at the current list price of $14, this home for sale at 1361 Nw 155th Dr features 0 bedrooms and 0 bathrooms. This real estate listing is located in of Miami Gardens, FL 33169-5723 . 1361 Nw 155th Dr is listed under the MLS ID of A11903991 and has been on the Miami Gardens real estate market for 0 days.

The data relating to real estate on this web site comes in part from the Internet Data Exchange program of the MLS of the REALTOR® Association of Greater Miami and the Beaches, and is updated as of November 21st, 2025 at 12:46am CST (date/time).

All information is deemed reliable but not guaranteed by the MLS and should be independently verified. All properties are subject to prior sale, change, or withdrawal. Neither listing broker(s) nor Waterfront Properties and Club Communities shall be responsible for any typographical errors, misinformation, or misprints, and shall be held totally harmless from any damages arising from reliance upon these data. © 2025 MLS of RAMB.

The information being provided is for consumers' personal, non-commercial use and may not be used for any purpose other than to identify prospective properties consumers may be interested in purchasing