1. Home
  2. Search Listings
  3. 8605 Sw 162nd St Palmetto Bay, FL - 33157-3693
REDUCED
  • MLS® #: A11878882
  • 8605 Sw 162nd St
  • Palmetto Bay, FL 33157-3693
  • $1,549,500
  • 4 Beds, 3 Bath, 2,215 SqFt
  • Residential

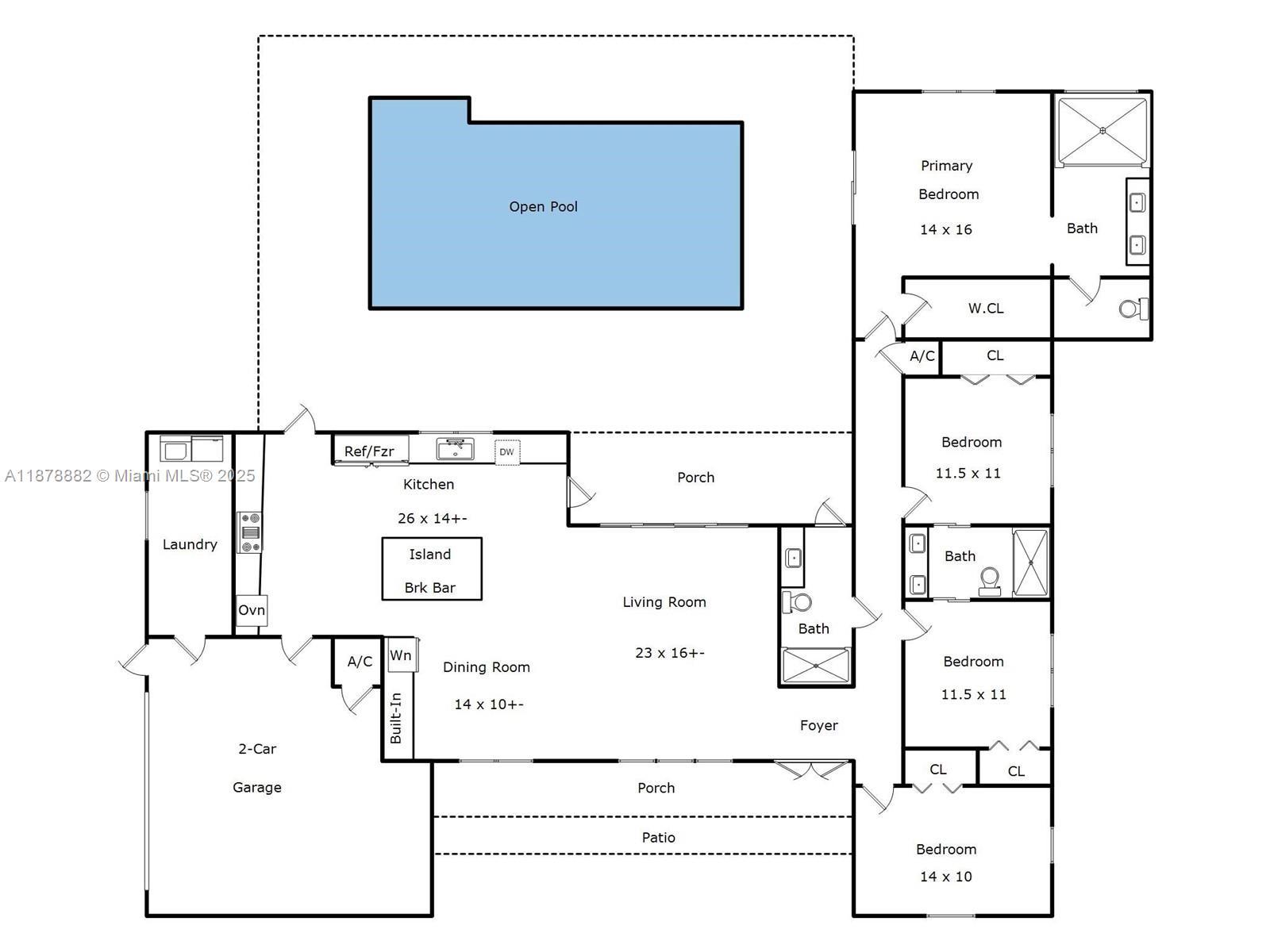
This beautifully remodeled 4-bedroom, 3-bath 3,117 Sq.Ft. home, expanded by nearly 500 sq. ft. in 2023, offers a spacious layout with a new master suite, master bath, and a Jack and Jill bathroom. The home has been upgraded with new plumbing, electrical systems, dual AC units with a split system, and a new roof for enhanced comfort and efficiency. Inside, you’ll find solid wood interior doors, Jenn Air appliances, and an air-conditioned laundry room for added convenience. The outdoor space features a gorgeous pool, perfect for relaxation and entertaining. With high-end finishes and thoughtful upgrades throughout, this home offers the perfect balance of modern living and comfort. Contact me today!

View Virtual Tour

Essential Information

  • MLS® #A11878882
  • Price$1,549,500
  • CAD Dollar$2,186,922
  • UK Pound£1,190,410
  • Euro€1,348,576
  • Bedrooms4
  • Bathrooms3.00
  • Full Baths3
  • Square Footage2,215
  • Year Built1969
  • TypeResidential
  • Sub-TypeSingle Family Residence
  • StyleDetached, One Story
  • StatusActive

Community Information

  • Address8605 Sw 162nd St
  • Area50
  • SubdivisionCORAL REEF ESTATES 5TH AD
  • CityPalmetto Bay
  • CountyMiami-Dade
  • StateFL
  • Zip Code33157-3693

Amenities

  • ParkingDriveway
  • # of Garages2
  • ViewPool
  • Pets AllowedConditional,Yes

Interior

  • InteriorTile
  • HeatingCentral, Electric
  • CoolingCentral Air, Electric
  • # of Stories1

Appliances

Dryer, Dishwasher, Electric Water Heater, Disposal, Gas Range, Microwave, Refrigerator, Washer

Exterior

  • RoofShingle
  • ConstructionBlock

Exterior Features

Security/High Impact Doors, Patio

School Information

  • ElementaryCoral Reef
  • MiddleGlades
  • HighMiami Palmetto
  • Office: Compass Florida, Llc

Property Location

Please provide a valid email address.

8605 Sw 162nd St on www.jupiteroceanfronthomes.us

Offered at the current list price of $1,549,500, this home for sale at 8605 Sw 162nd St features 4 bedrooms and 3 bathrooms. This real estate listing is located in CORAL REEF ESTATES 5TH AD of Palmetto Bay, FL 33157-3693 and is approximately 2,215 square feet. 8605 Sw 162nd St is listed under the MLS ID of A11878882 and has been on the Palmetto Bay real estate market for 43 days.

Similar Listings to 8605 Sw 162nd St

Photo of Listing #A11721372
  • MLS® #: A11721372
  • 7620 Sw 136th St
  • Palmetto Bay, FL 33156-6870
  • $1,320,000
  • 3 Bed, 3 Bath, 2,142 SqFt
  • Residential
Add as Favorite
Photo of Listing #A11740815
  • MLS® #: A11740815
  • 14091 Sw 82nd Pl
  • Palmetto Bay, FL 33158-1016
  • $1,695,000
  • 4 Bed, 3 Bath, 2,441 SqFt
  • Residential
Add as Favorite
Photo of Listing #A11774729
  • MLS® #: A11774729
  • 14725 Sw 82nd Ave
  • Palmetto Bay, FL 33158-1903
  • $1,590,000
  • 5 Bed, 3 Bath, 2,396 SqFt
  • Residential
Add as Favorite
Photo of Listing #A11779111
  • MLS® #: A11779111
  • 7801 Sw 170th St
  • Palmetto Bay, FL 33157-4869
  • $1,779,000
  • 5 Bed, 4 Bath, 3,756 SqFt
  • Residential
Add as Favorite

The data relating to real estate on this web site comes in part from the Internet Data Exchange program of the MLS of the REALTOR® Association of Greater Miami and the Beaches, and is updated as of November 5th, 2025 at 9:39am CST (date/time).

All information is deemed reliable but not guaranteed by the MLS and should be independently verified. All properties are subject to prior sale, change, or withdrawal. Neither listing broker(s) nor Waterfront Properties and Club Communities shall be responsible for any typographical errors, misinformation, or misprints, and shall be held totally harmless from any damages arising from reliance upon these data. © 2025 MLS of RAMB.

The information being provided is for consumers' personal, non-commercial use and may not be used for any purpose other than to identify prospective properties consumers may be interested in purchasing