1. Home
  2. Search Listings
  3. 617 Almeria Ave Coral Gables, FL - 33134-5602
REDUCED
  • MLS® #: A11870469
  • 617 Almeria Ave
  • Coral Gables, FL 33134-5602
  • $5,250,000
  • 6 Beds, 6 Bath, 4,974 SqFt
  • Residential

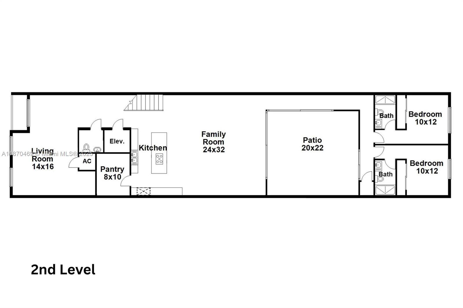
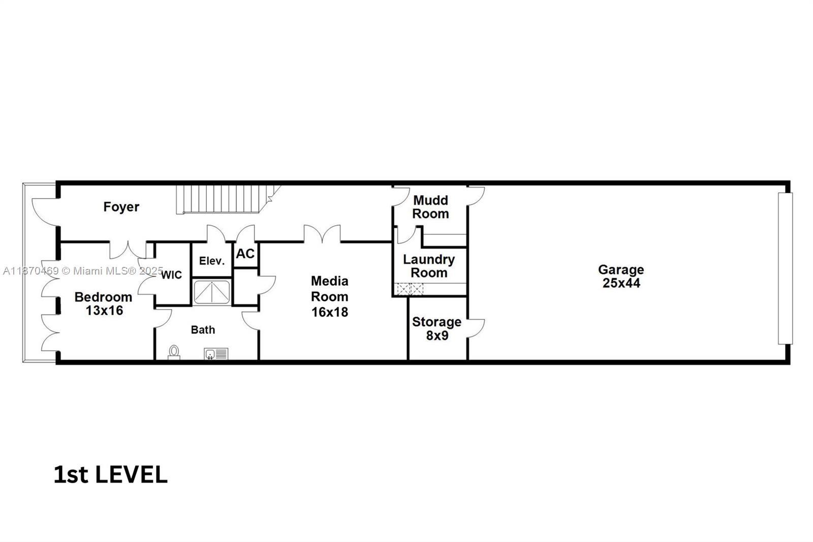
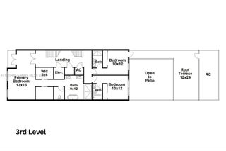
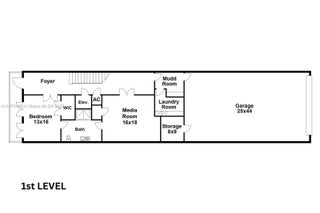
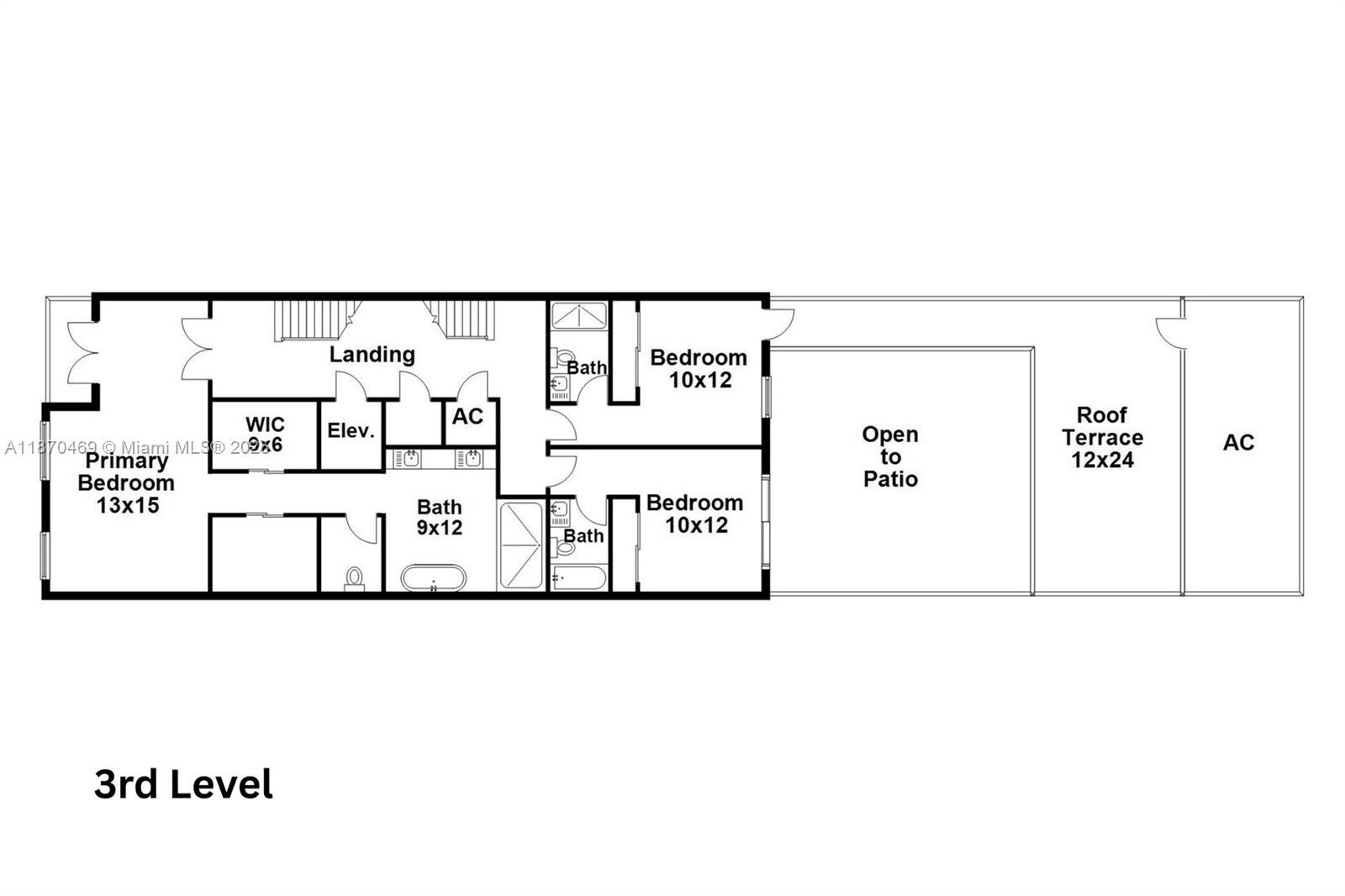
Built in 2021, this 7 bedroom, 5.5 bathroom townhouse has all of the bells and whistles of new construction, but is ready to go right now! Located in the heart of Coral Gables, the home spans 3 interior floors, plus a fabulous rooftop with private pool. The heart of the home is the kitchen with high-end appliances that opens to the spectacular family room and ultra-private interior courtyard. Located on the 3rd floor, the primary suite is a private retreat with 2 walk-in closets and Zen bathroom with dual vanities, soaking tub, and separate shower. Wonderful finishes include large format porcelain tile and wide wood plank floors, 4 car garage, laundry room, separate mud room, elevator, and impact glass windows and doors throughout.

View Virtual Tour

Essential Information

  • MLS® #A11870469
  • Price$5,250,000
  • CAD Dollar$7,352,363
  • UK Pound£3,945,590
  • Euro€4,516,055
  • Bedrooms6
  • Bathrooms6.00
  • Full Baths5
  • Half Baths1
  • Square Footage4,974
  • Year Built2021
  • TypeResidential
  • Sub-TypeTownhouse
  • StyleOther
  • StatusActive

Community Information

  • Address617 Almeria Ave
  • Area41
  • SubdivisionCORAL GABLES BILTMORE SEC
  • CityCoral Gables
  • CountyMiami-Dade
  • StateFL
  • Zip Code33134-5602

Amenities

  • AmenitiesPool
  • UtilitiesCable Available
  • ParkingOther
  • # of Garages4
  • GaragesGarage Door Opener
  • ViewGarden
  • Pets AllowedConditional,Yes

Interior

  • InteriorHardwood, Tile, Wood
  • HeatingCentral, Electric
  • CoolingCentral Air, Electric

Appliances

Built-In Oven, Dryer, Dishwasher, Electric Range, Disposal, Microwave, Refrigerator, Washer

Exterior

  • WindowsImpact Glass
  • ConstructionBlock

Exterior Features

Deck, Security/High Impact Doors, Patio

School Information

  • ElementaryCoral Gables
  • MiddlePonce De Leon
  • HighCoral Gables
  • Office: Bhhs Ewm Realty

Property Location

Please provide a valid email address.

617 Almeria Ave on www.jupiteroceanfronthomes.us

Offered at the current list price of $5,250,000, this home for sale at 617 Almeria Ave features 6 bedrooms and 6 bathrooms. This real estate listing is located in CORAL GABLES BILTMORE SEC of Coral Gables, FL 33134-5602 and is approximately 4,974 square feet. 617 Almeria Ave is listed under the MLS ID of A11870469 and has been on the Coral Gables real estate market for 52 days.

Similar Listings to 617 Almeria Ave

Photo of Listing #A11529010
  • MLS® #: A11529010
  • 504 Malaga Ave T5
  • Coral Gables, FL 33134-6513
  • $4,600,000
  • 4 Bed, 5 Bath, 3,246 SqFt
  • Residential
Add as Favorite
Photo of Listing #A11702982
  • MLS® #: A11702982
  • 613 Almeria Ave
  • Coral Gables, FL 33134-5602
  • $5,799,000
  • 5 Bed, 8 Bath, 4,974 SqFt
  • Residential
Add as Favorite
Photo of Listing #A11773987
  • MLS® #: A11773987
  • 915 Palermo Ave 7
  • Coral Gables, FL 33134
  • $5,500,000
  • 4 Bed, 5 Bath, 5,397 SqFt
  • Residential
Add as Favorite
Photo of Listing #A11529008
  • MLS® #: A11529008
  • 504 Malaga Ave T8
  • Coral Gables, FL 33134-6513
  • $4,400,000
  • 4 Bed, 4 Bath, 3,218 SqFt
  • Residential
Add as Favorite

The data relating to real estate on this web site comes in part from the Internet Data Exchange program of the MLS of the REALTOR® Association of Greater Miami and the Beaches, and is updated as of October 25th, 2025 at 11:15pm CDT (date/time).

All information is deemed reliable but not guaranteed by the MLS and should be independently verified. All properties are subject to prior sale, change, or withdrawal. Neither listing broker(s) nor Waterfront Properties and Club Communities shall be responsible for any typographical errors, misinformation, or misprints, and shall be held totally harmless from any damages arising from reliance upon these data. © 2025 MLS of RAMB.

The information being provided is for consumers' personal, non-commercial use and may not be used for any purpose other than to identify prospective properties consumers may be interested in purchasing