1. Home
  2. Search Listings
  3. MLS® #A11848985 Opa Locka, FL - 33054-0000
  • MLS® #: A11848985
  • N/a
  • Opa Locka, FL 33054-0000
  • $575,000
  • 0.20 Acres
  • Land

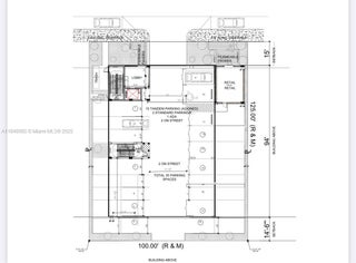
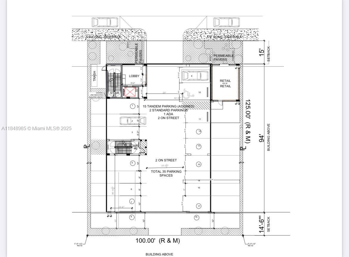
Located in a Mixed-Use Overlay Zone, this site offers an incredible opportunity for builders, investors, and developers looking to capitalize on a density increase of 100 units per acre. With other development projects already underway in the area, this is the perfect time to secure a foothold in an up-and-coming neighborhood. The current owner had plans for a 17-unit, 4-story building, and while those plans were not officially submitted, you can see the proposed schematics in the pictures. This site is brimming with potential — whether you’re looking to follow through with the existing concept or explore your own vision, the possibilities are endless!

View Virtual Tour

Essential Information

  • MLS® #A11848985
  • Price$575,000
  • CAD Dollar$806,394
  • UK Pound£437,404
  • Euro€494,053
  • Bathrooms0.00
  • Acres0.20
  • TypeLand
  • Sub-TypeResidential
  • StatusActive

Community Information

  • AddressN/a
  • Area21
  • SubdivisionMAGNOLIA SUB
  • CityOpa Locka
  • CountyMiami-Dade
  • StateFL
  • Zip Code33054-0000
  • Office: The R E Experts Of South Fla

Property Location

Please provide a valid email address.

N/a on www.jupiteroceanfronthomes.us

Offered at the current list price of $575,000, this home for sale at N/a features 0 bedrooms and 0 bathrooms. This real estate listing is located in MAGNOLIA SUB of Opa Locka, FL 33054-0000 . N/a is listed under the MLS ID of A11848985 and has been on the Opa Locka real estate market for 83 days.

The data relating to real estate on this web site comes in part from the Internet Data Exchange program of the MLS of the REALTOR® Association of Greater Miami and the Beaches, and is updated as of November 14th, 2025 at 6:18am CST (date/time).

All information is deemed reliable but not guaranteed by the MLS and should be independently verified. All properties are subject to prior sale, change, or withdrawal. Neither listing broker(s) nor Waterfront Properties and Club Communities shall be responsible for any typographical errors, misinformation, or misprints, and shall be held totally harmless from any damages arising from reliance upon these data. © 2025 MLS of RAMB.

The information being provided is for consumers' personal, non-commercial use and may not be used for any purpose other than to identify prospective properties consumers may be interested in purchasing