1. Home
  2. Search Listings
  3. 12790 Ne 10 Ave North Miami, FL - 33161-0000
  • MLS® #: A11843037
  • 12790 Ne 10 Ave
  • North Miami, FL 33161-0000
  • $369,000
  • 3 Beds, 3 Bath, 1,750 SqFt
  • Residential

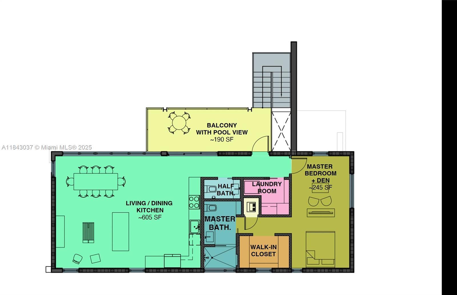
This 7,560 SF Vacant Lot is ready for you to build a brand-new modern house or make a smart investment in your future! The land comes with architectural plans to develop an eco-efficient, tropical, two-story residence featuring a lap pool, expansive terrace and balcony, and a spacious backyard. A rare opportunity to start building with no delays. City water and sewer are available. Located on a quiet street with shade, breezes from the trees, and birdsong—yet just minutes from local shops, restaurants, the BEACH, Bal Harbour, Whole Foods, the Museum of Contemporary Art (MOCA), Biscayne Park, a 22-acre hidden oasis-park, cafes, breweries, and more.

View Virtual Tour

Essential Information

  • MLS® #A11843037
  • Price$369,000
  • CAD Dollar$518,502
  • UK Pound£280,335
  • Euro€318,123
  • Bedrooms3
  • Bathrooms3.00
  • Full Baths2
  • Half Baths1
  • Square Footage1,750
  • Year Built2026
  • TypeResidential
  • Sub-TypeSingle Family Residence
  • StyleDetached, Two Story
  • StatusActive Under Contract

Community Information

  • Address12790 Ne 10 Ave
  • Area22
  • SubdivisionIRONS MANOR 3RD ADDN
  • CityNorth Miami
  • CountyMiami-Dade
  • StateFL
  • Zip Code33161-0000

Amenities

  • FeaturesStreet Lights, Sidewalks
  • ParkingDriveway
  • # of Garages2
  • ViewOther

Interior

  • InteriorConcrete
  • AppliancesNone
  • HeatingNone
  • CoolingOther
  • # of Stories2
  • StoriesTwo

Exterior

  • Exterior FeaturesFruit Trees, Patio
  • RoofFlat, Tile
  • ConstructionBlock

School Information

  • MiddleNorth Miami
  • Office: Oceanside Resorts Realty

Property Location

Please provide a valid email address.

12790 Ne 10 Ave on www.jupiteroceanfronthomes.us

Offered at the current list price of $369,000, this home for sale at 12790 Ne 10 Ave features 3 bedrooms and 3 bathrooms. This real estate listing is located in IRONS MANOR 3RD ADDN of North Miami, FL 33161-0000 and is approximately 1,750 square feet. 12790 Ne 10 Ave is listed under the MLS ID of A11843037 and has been on the North Miami real estate market for 108 days.

Similar Listings to 12790 Ne 10 Ave

Photo of Listing #A11834984
  • MLS® #: A11834984
  • 60 Nw 120th Ter
  • North Miami, FL 33168-4508
  • $330,000
  • 2 Bed, 1 Bath, 777 SqFt
  • Residential
Add as Favorite
Photo of Listing #A11843323
  • MLS® #: A11843323
  • 125 Nw 122nd St
  • North Miami, FL 33168-4517
  • $315,000
  • 3 Bed, 1 Bath, 985 SqFt
  • Residential
Add as Favorite
Photo of Listing #A11868693
  • MLS® #: A11868693
  • 1060 Nw 121st St
  • North Miami, FL 33168-6341
  • $375,000
  • 2 Bed, 1 Bath, 720 SqFt
  • Residential
Add as Favorite
Photo of Listing #A11905165
  • MLS® #: A11905165
  • 12240 Nw 13th Ave
  • North Miami, FL 33167-2801
  • $399,999
  • 3 Bed, 2 Bath, 1,176 SqFt
  • Residential
Add as Favorite

The data relating to real estate on this web site comes in part from the Internet Data Exchange program of the MLS of the REALTOR® Association of Greater Miami and the Beaches, and is updated as of November 18th, 2025 at 1:17pm CST (date/time).

All information is deemed reliable but not guaranteed by the MLS and should be independently verified. All properties are subject to prior sale, change, or withdrawal. Neither listing broker(s) nor Waterfront Properties and Club Communities shall be responsible for any typographical errors, misinformation, or misprints, and shall be held totally harmless from any damages arising from reliance upon these data. © 2025 MLS of RAMB.

The information being provided is for consumers' personal, non-commercial use and may not be used for any purpose other than to identify prospective properties consumers may be interested in purchasing