1. Home
  2. Search Listings
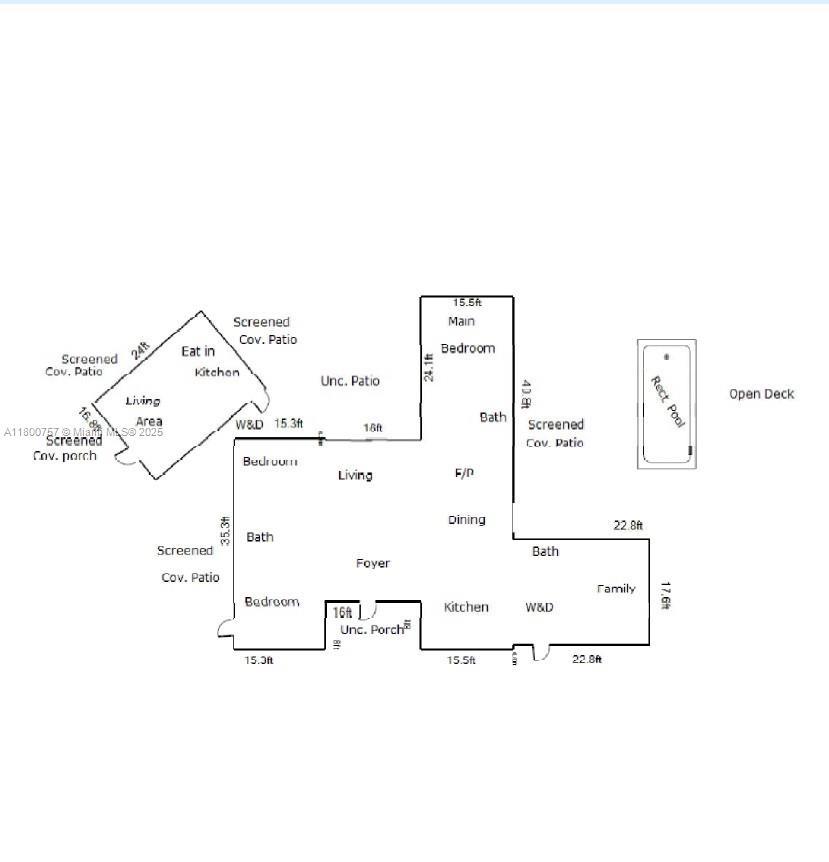
  3. 5858 Sw 80th St South Miami, FL - 33143-5518
  • MLS® #: A11800757
  • 5858 Sw 80th St
  • South Miami, FL 33143-5518
  • $2,000,000
  • 4 Beds, 4 Bath, 2,291 SqFt
  • Residential

Offered at $500,000 below recent appraised value! - This classic mid-century Florida gem with a detached cottage sits on an 17,940 sq ft lot just a short stroll away from downtown South Miami. Built like a fortress with brick floors, brick walls, Dade County Pine tongue-& -groove ceilings, it has gracefully stood strong & resilient for the last 73 years surrounded by lush landscaping, screened-in decks for seamless outdoor living & a pool, it’s a true tropical retreat. Appreciate & keep its architectural heritage with an upgraded modern update OR develop your vison as the large lot offers a rare canvas to build a stunning, 2 story, 7,000–7,500+ sq ft modern luxury estate. See MLS attachments for more details about this prime opportunity

View Virtual Tour

Essential Information

  • MLS® #A11800757
  • Price$2,000,000
  • CAD Dollar$2,820,846
  • UK Pound£1,530,980
  • Euro€1,738,056
  • Bedrooms4
  • Bathrooms4.00
  • Full Baths4
  • Square Footage2,291
  • Year Built1952
  • TypeResidential
  • Sub-TypeSingle Family Residence
  • StyleDetached, One Story, Ranch
  • StatusActive

Community Information

  • Address5858 Sw 80th St
  • Area40
  • SubdivisionPALM MIAMI HEIGHTS REV
  • CitySouth Miami
  • CountyMiami-Dade
  • StateFL
  • Zip Code33143-5518

Amenities

  • UtilitiesCable Available
  • ParkingCircular Driveway
  • ViewGarden, Pool

Interior

  • InteriorOther
  • HeatingElectric
  • FireplaceYes
  • # of Stories1
  • StoriesOne

Appliances

Dryer, Dishwasher, Electric Range, Electric Water Heater, Refrigerator, Washer

Cooling

Ceiling Fan(s), Electric, Zoned

Exterior

  • Exterior FeaturesDeck
  • WindowsBlinds
  • RoofShingle
  • ConstructionBlock, Brick

School Information

  • ElementarySunset
  • MiddlePonce De Leon
  • HighCoral Gables
  • Office: Re/max Advance Realty Ii

Property Location

Please provide a valid email address.

5858 Sw 80th St on www.jupiteroceanfronthomes.us

Offered at the current list price of $2,000,000, this home for sale at 5858 Sw 80th St features 4 bedrooms and 4 bathrooms. This real estate listing is located in PALM MIAMI HEIGHTS REV of South Miami, FL 33143-5518 and is approximately 2,291 square feet. 5858 Sw 80th St is listed under the MLS ID of A11800757 and has been on the South Miami real estate market for 132 days.

Similar Listings to 5858 Sw 80th St

Photo of Listing #A11806730
  • MLS® #: A11806730
  • 5943 Sw 62nd St
  • South Miami, FL 33143-2249
  • $1,900,000
  • 5 Bed, 4 Bath, 2,502 SqFt
  • Residential
Add as Favorite
Photo of Listing #A11823554
  • MLS® #: A11823554
  • 6670 Sw 69th Ln
  • South Miami, FL 33143-3280
  • $1,925,000
  • 4 Bed, 4 Bath, 2,988 SqFt
  • Residential
Add as Favorite
Photo of Listing #A11839300
  • MLS® #: A11839300
  • 6867 Sw 62nd Ter
  • South Miami, FL 33143-1928
  • $2,050,000
  • 3 Bed, 3 Bath, 3,443 SqFt
  • Residential
Add as Favorite
Photo of Listing #A11854498
  • MLS® #: A11854498
  • 5941 Sw 88th St
  • South Miami, FL 33156-2067
  • $2,100,000
  • 5 Bed, 4 Bath, 3,883 SqFt
  • Residential
Add as Favorite

The data relating to real estate on this web site comes in part from the Internet Data Exchange program of the MLS of the REALTOR® Association of Greater Miami and the Beaches, and is updated as of November 6th, 2025 at 8:30pm CST (date/time).

All information is deemed reliable but not guaranteed by the MLS and should be independently verified. All properties are subject to prior sale, change, or withdrawal. Neither listing broker(s) nor Waterfront Properties and Club Communities shall be responsible for any typographical errors, misinformation, or misprints, and shall be held totally harmless from any damages arising from reliance upon these data. © 2025 MLS of RAMB.

The information being provided is for consumers' personal, non-commercial use and may not be used for any purpose other than to identify prospective properties consumers may be interested in purchasing