1. Home
  2. Search Listings
  3. 5909 Anno Ave 5909 Orlando, FL - 32809
REDUCED
  • MLS® #: A11700472
  • 5909 Anno Ave 5909
  • Orlando, FL 32809
  • $3,495,000
  • Business

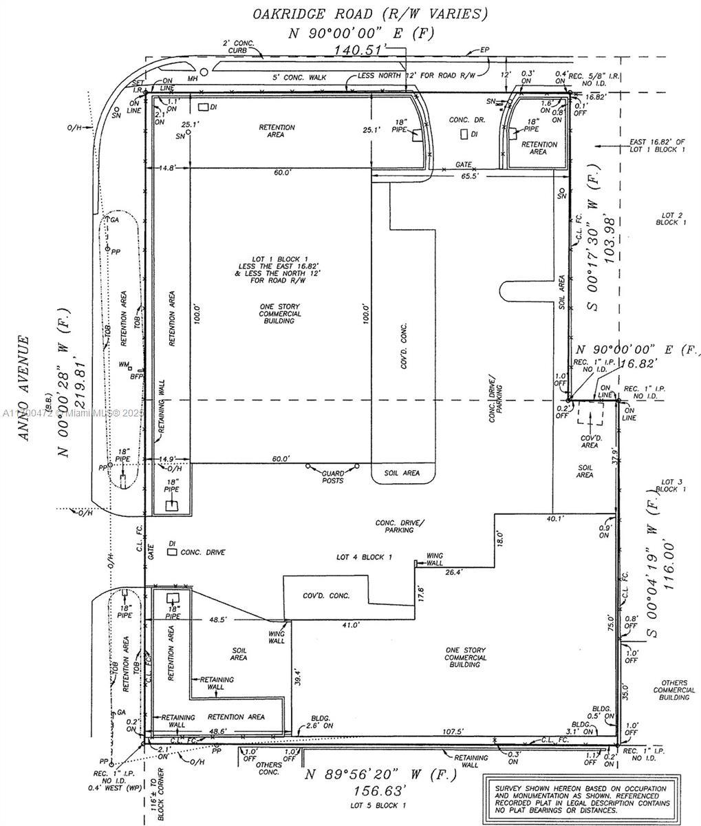
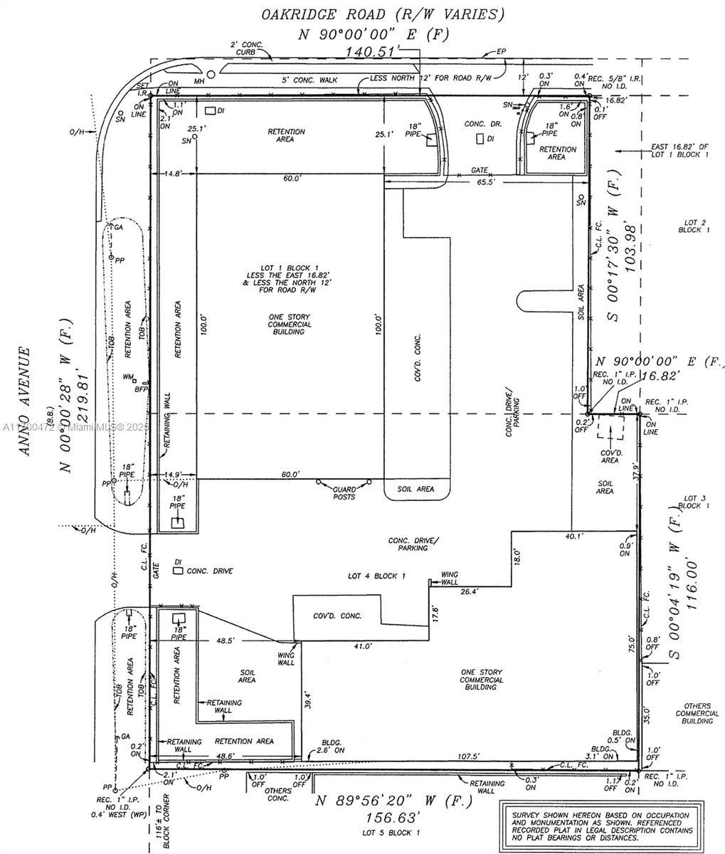
Wilshire Advisory Group presents a corner industrial/retail property for Lease and For Sale in the Orlando Airport–Edgewood submarket. The 13,257± SF property (two buildings: 5,997 & 7,260 RSF) sits on 0.63 acres with excellent access to Orlando Intl. Airport, SR-528, and the Turnpike. Built in 2001 and fully renovated in 2017 with upgraded offices and mezzanine. Zoned C-3 (Wholesale Commercial District, Auto Repair Garage use). Includes 2,500± SF office, four oversized grade-level doors (14’–16’ W x 14’ H), 18’–21’ clear height, 3-phase 240V/400A power, LED lighting, 19 parking spaces, and monument signage on E Oak Ridge Rd. & Anno Ave. 2025 taxes: $43,808. For Lease and for Sale Flyer - Attached

View Virtual Tour

Essential Information

  • MLS® #A11700472
  • Price$3,495,000
  • CAD Dollar$4,906,417
  • UK Pound£2,658,426
  • Euro€3,004,442
  • Bathrooms0.00
  • Acres0.00
  • TypeBusiness
  • Sub-TypeIndustrial
  • StatusActive

Community Information

  • Address5909 Anno Ave 5909
  • Area5940 Florida Other
  • CityOrlando
  • CountyOrange
  • StateFL
  • Zip Code32809
  • Office: Wilshire Advisory Group Corp

Property Location

Please provide a valid email address.

5909 Anno Ave 5909 on www.jupiteroceanfronthomes.us

Offered at the current list price of $3,495,000, this home for sale at 5909 Anno Ave 5909 features 0 bedrooms and 0 bathrooms. This real estate listing is located in of Orlando, FL 32809 . 5909 Anno Ave 5909 is listed under the MLS ID of A11700472 and has been on the Orlando real estate market for 352 days.

The data relating to real estate on this web site comes in part from the Internet Data Exchange program of the MLS of the REALTOR® Association of Greater Miami and the Beaches, and is updated as of November 14th, 2025 at 3:01am CST (date/time).

All information is deemed reliable but not guaranteed by the MLS and should be independently verified. All properties are subject to prior sale, change, or withdrawal. Neither listing broker(s) nor Waterfront Properties and Club Communities shall be responsible for any typographical errors, misinformation, or misprints, and shall be held totally harmless from any damages arising from reliance upon these data. © 2025 MLS of RAMB.

The information being provided is for consumers' personal, non-commercial use and may not be used for any purpose other than to identify prospective properties consumers may be interested in purchasing