1. Home
  2. Search Listings
  3. 17535 Nw 2nd Ave 108-109 Miami Gardens, FL - 33169
  • MLS® #: A11914226
  • 17535 Nw 2nd Ave 108-109
  • Miami Gardens, FL 33169
  • $2,799,000
  • Business

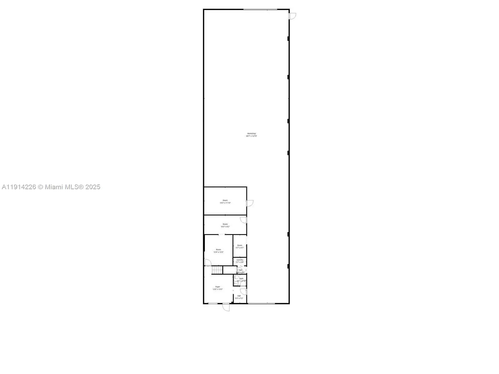
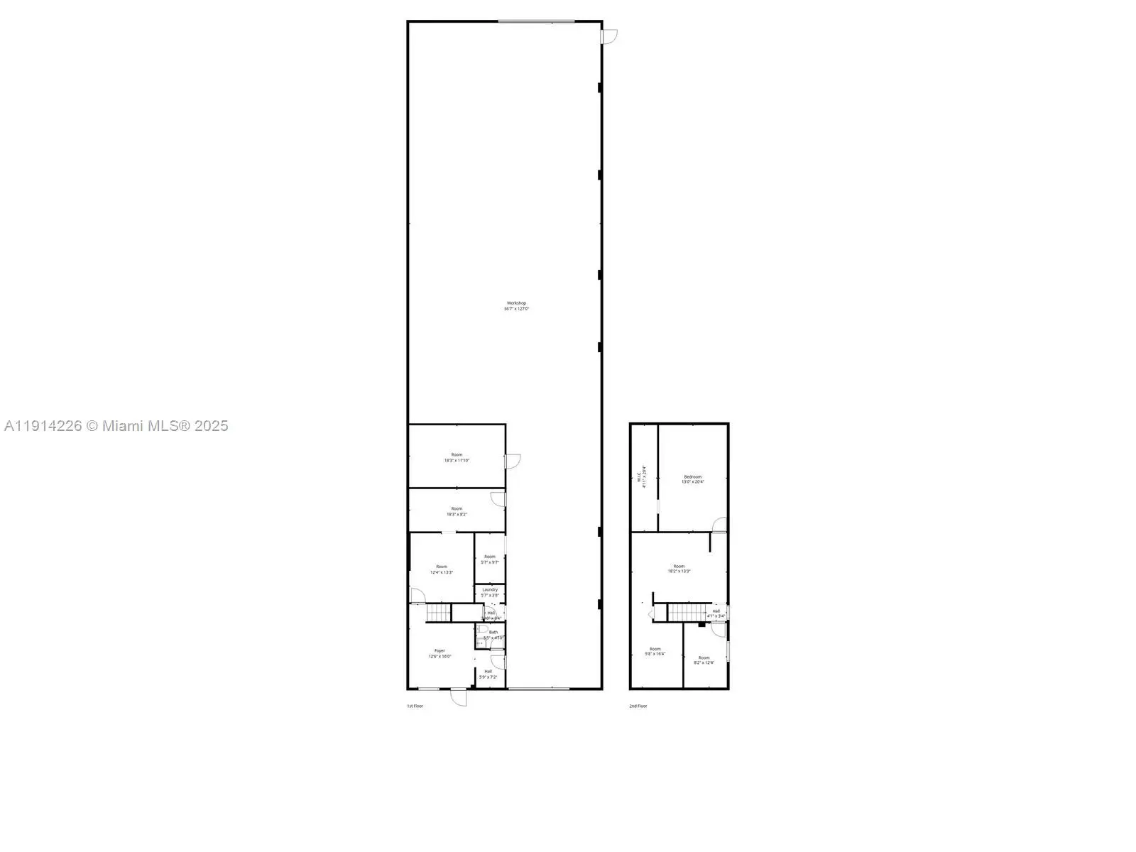
Nice, clean turn-key warehouse. Offering nearly 10,000 SF of versatile industrial space, this rare opportunity features two adjoining 4,900 SF bays within a standalone structure in a boutique industrial park. Constructed with durable twin-T concrete and equipped with 12’ roll-up doors, the building includes a partially open interior wall that allows easy flow between both sections. Located in Golden Glades Commerce Park—an established commercial condominium complex positioned at the crossroads of the Turnpike, I-95, 826, 441, and SR-9—the property benefits from exceptional regional connectivity. The park provides gated, fenced, and well-illuminated grounds with unrestricted 24/7 access.

View Virtual Tour

Essential Information

  • MLS® #A11914226
  • Price$2,799,000
  • CAD Dollar$3,855,858
  • UK Pound£2,063,300
  • Euro€2,374,652
  • Bathrooms0.00
  • Year Built1956
  • TypeBusiness
  • Sub-TypeMixed Use
  • StatusActive

Community Information

  • Address17535 Nw 2nd Ave 108-109
  • Area21
  • CityMiami Gardens
  • CountyMiami-Dade
  • StateFL
  • Zip Code33169
  • Office: The Brokerage South Florida Real Estate, Llc.

Property Location

Please provide a valid email address.

17535 Nw 2nd Ave 108-109 on www.jupiteroceanfronthomes.us

Offered at the current list price of $2,799,000, this home for sale at 17535 Nw 2nd Ave 108-109 features bedrooms and 0 bathrooms. This real estate listing is located in of Miami Gardens, FL 33169 . 17535 Nw 2nd Ave 108-109 is listed under the MLS ID of A11914226 and has been on the Miami Gardens real estate market for 149 days.

The data relating to real estate on this web site comes in part from the Internet Data Exchange program of the MLS of the REALTOR® Association of Greater Miami and the Beaches, and is updated as of April 15th, 2026 at 5:18pm CDT (date/time).

All information is deemed reliable but not guaranteed by the MLS and should be independently verified. All properties are subject to prior sale, change, or withdrawal. Neither listing broker(s) nor Waterfront Properties and Club Communities shall be responsible for any typographical errors, misinformation, or misprints, and shall be held totally harmless from any damages arising from reliance upon these data. © 2026 MLS of RAMB.

The information being provided is for consumers' personal, non-commercial use and may not be used for any purpose other than to identify prospective properties consumers may be interested in purchasing